碧桂园云顶【商铺网站】丨建面约143-230㎡丨在售楼栋丨物业公司丨开发商介绍

搜狐焦点咸阳站 2025-10-20 09:30:00
用手机看
扫描到手机,新闻随时看

扫一扫,用手机看文章
更加方便分享给朋友

西安碧桂园云顶售楼处提供详细项目信息,涵盖户型、交通、商圈及物业,彰显高品质生活体验。

西安「碧桂园云顶」

售楼处:029-88866690(营销中心)

售楼部地址:029-88866690(致电发送详情地址)

项目介绍

项目:碧桂园云顶D区

地址:西安曲江芙蓉西路与航天大道十字西北角

产权年限: 70年

绿地率: 32.76%

容积率:2.98

层高:143㎡层高3米、190㎡-230㎡层高3.1米

梯户比: 143㎡2梯3户、190㎡2梯2户、230㎡2梯2户/1梯2户

在推售楼栋:7#、9#、10#、11#、12#

物业公司: 碧桂园物业

装修状态: 精装

【关于开发商】碧桂园控股有限公司,成立于1992年,是中国销售规模最大的城镇化住宅开发商之一。公司采用集中及标准化的运营模式,提供多元化的产品以契合不同市场需求。

截至2021年12月31日,公司开发项目遍布中国内地31个省、299个地级行政区划、1425个区县,项目总数达到3216个。2022年,碧桂园连续第六年入选《财富》世界500强榜单,位列第138位。

【商业】

云顶项目周围有四大商圈环绕,大雁塔商圈、南湖商圈、雁翔路商圈、CCBD商圈等。有已建成运营的金辉·环球广场、星座广场;华润万家步行15分钟就可以到达,盒马鲜生、徐记海鲜、海底捞、麦当劳、奥斯卡等,步行5分钟就可以享受,满足生活所需。

【交通状况】

轨交:地铁4号线航天大

自驾:走三环或者绕城高速

道路:外部绕城高速、南三环、航天大道、雁塔南路、芙蓉西路等多维立体交通,打通游刃有余的外交关系。

装标品牌

承袭云系精装标准 硬核品质实力非凡

德国柏丽、杜拉维特、德国高仪、美国西勒奇等名宅钟爱品牌量身优装,呈现艺术与实用的平衡,为大西安城市风华人物,敬献优质生活享受。

户型分析图

143户型

部分户型因位置、楼层、朝向的影响,相同面积的户型存在区别,以现场公示及实际销售双方签订合同为准

190户型

部分户型因位置、楼层、朝向的影响,相同面积的户型存在区别,以现场公示及实际销售双方签订合同为准

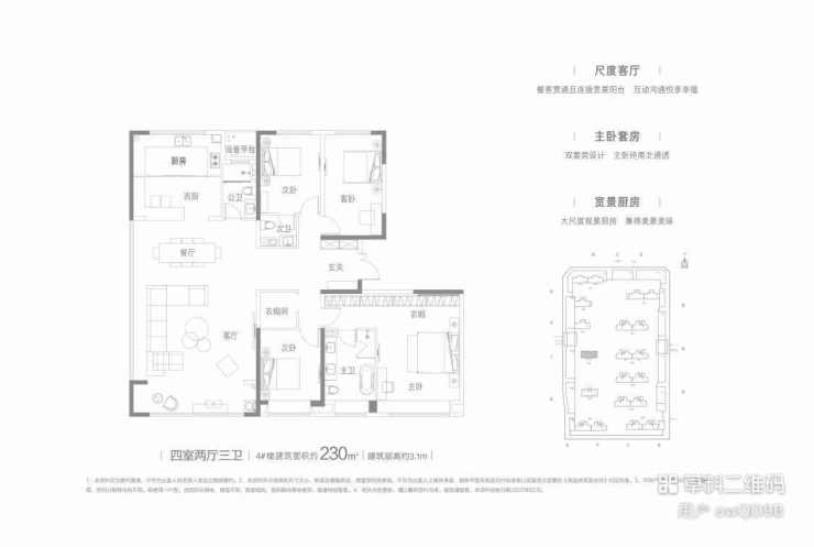
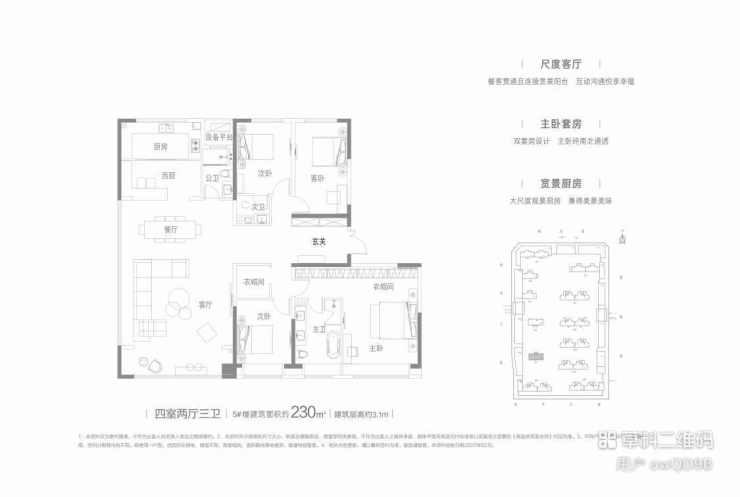
230户型

部分户型因位置、楼层、朝向的影响,相同面积的户型存在区别,以现场公示及实际销售双方签订合同为准

【碧桂园云顶】售楼处TEL:029-88866690【售楼中心】

了解最新优惠折扣价格——请拨打售楼处

声明:本文由入驻焦点开放平台的作者撰写,除焦点官方账号外,观点仅代表作者本人,不代表焦点立场。