(租售中心)华清园文津观澜商铺丨建面约86-143㎡丨产品介绍丨落户政策丨周边配套
扫描到手机,新闻随时看
扫一扫,用手机看文章
更加方便分享给朋友
西安「华清园文津观澜」
售楼处:029-88866690(营销中心)
售楼部地址:029-88866690(致电发送详情地址)
小区规划
绿化率: 30%
容积率: 2.67
占地面积: 约64亩
建筑面积: 16万方
总户数: 918户
当期户数: 906户
车位比: 1:1.2
物业费: 2.2元/㎡·月
车位: 共1021个车位
物业公司: 西安市万科物业服务有限公司
在了解项目之前,我们先来看看华清园•文津观澜项目品牌,是启迪控股旗下子公司华清园,启迪控股也是国家现代服务业示范单位。依托于清华大学设立,是清华科技园开发建设和运营管理单位。
项目整体占地约370亩,总建面约78万㎡,分六期开发。容积率低至2.8,绿化率高达35%,共规划47栋楼,其中住宅43栋,写字楼4栋,总户数3712户,规划车位5550个(住宅4289个,商业1261个)。
项目一期共规划11栋楼,已于2018年5月首推全部售罄。二期位于一期南侧,占地约46亩,是由6栋20层的高层和3栋6+1的洋房组成,目前二期也已经售罄。
商业配套:项目自身有园区配套,后期也会有集中性商业和社区底商。项目西侧约1公里有大秦文明园地下商业广场,以“秦文化”为主题,打造及文化艺术中心、秦风情街、文化艺术体验区全方位的商业模式。
生态环境:项目南侧一路之隔紧邻的就是渭河生态景观带,全长18公里,整个渭河生态景区绿化面积约2.93万亩,水面面积4963亩,囊括河滩景观带,滨河大道景观带和绿色长廊景观带等。
交通方面:项目东临秦宫三路,西至秦宫二路,北临兰池三路,南至兰池大道。项目北侧紧邻地铁14号线,该线路北接机场,横贯秦汉新城,途经北客站最终到达港务区。离项目最近的站点是地铁14号线秦宫站,直线距离大约1.3公里。项目周边还有多条公交线路开通(咸阳32路,咸阳33路,361路,362路,1010路,1145路,1140路,西咸39路),为业主的出行提供了极大的便利。与此同时,项目东侧2公里左右,秦汉收费站口的开通,也极大方便了项目到机场和市区的时间。
教育资源:项目分别位四期和六期设立幼儿园。除项目本身教育资源外,在项目北侧一路之隔是清华附中秦汉学校,是一所公办全日制寄宿制学校。项目西侧两公里是星河湾西交康桥学校,东侧约3公里有兰池学校(具体能上哪所学校要根据交房后有关部门划分为准)。
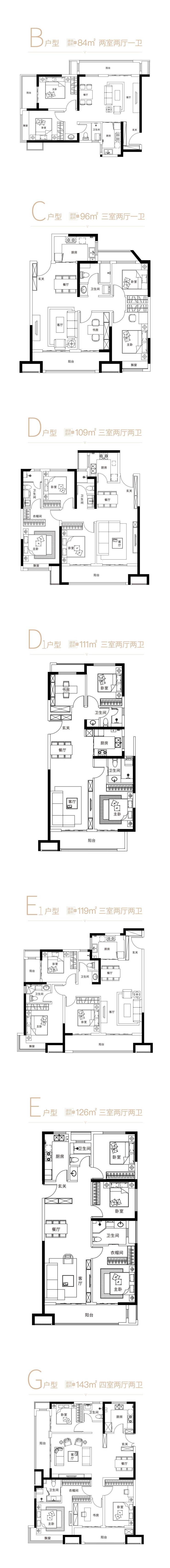
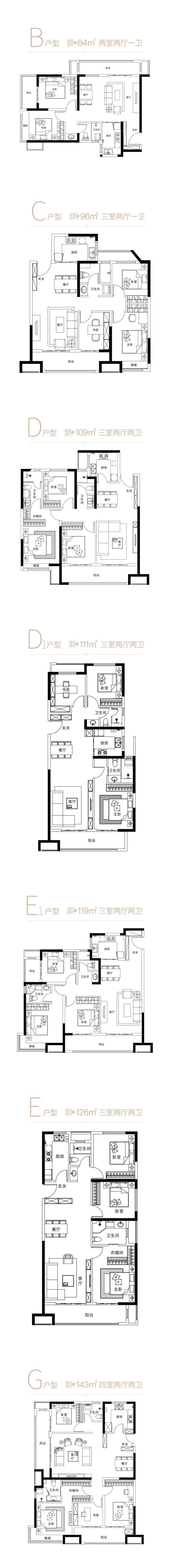
主推户型
【华清园文津观澜】售楼处TEL:029-88866690【售楼中心】
了解最新优惠折扣价格——请拨打售楼处
声明:本文由入驻焦点开放平台的作者撰写,除焦点官方账号外,观点仅代表作者本人,不代表焦点立场。
