西安商铺!老城根雍锦里—知名开发商—优惠信息—改善好房—买房攻略

搜狐焦点咸阳站 2025-10-02 10:54:00
用手机看
扫描到手机,新闻随时看

扫一扫,用手机看文章
更加方便分享给朋友

西安老城根雍锦里售楼处主打改善住宅,均价16000元/㎡,绿化率35%,融合时尚与自然,定位高端改善生活。

西安「老城根雍锦里」

售楼处:029-88866690(营销中心)

售楼部地址:029-88866690(致电发送详情地址)

小区情况

楼盘价格: 参考均价 16000 元/㎡

物业类型: 普通住宅

区域板块: 城西

产权年限住宅:70

绿化率:35%

规划户数:467户

预售证号:2023572

发证时间:2023-12-21

绑定楼栋:3#、4#

·潮玩圣地:别人的追逐,不过是你的生活

西北旗舰店/首店聚集地:

迪奥、AJ、POPMART、lululemon、Coach、MK、%、MLB等

各大品牌聚合场:盒马/方所书店/开顿影城/海底捞等

品质餐饮先享区:眉州东坡、老铺烤鸭、仟滕日料、靓靓蒸虾、薇酌饮、倾城瘾食等

楼市新政,二环内持续限购,土地价值一城认可,有限核芯资产注定引人抢藏。

西安2023年二批次土地出让计划,碑林、莲湖、新城主城三区供地相加,仅占总出让面积约3.54%(数据来源:西安楼市情报公众号),主城新地已近告罄,未来难有新盘供应,进驻主城机会越来越少。

主城耕新第一篇章:繁华启序

老城根G park

千年文脉与世界风潮碰撞融合,造就时尚生活集合体。更新老城面貌,焕新生活方式,引领时代潮流,让西安重新认识城西,让世界重新瞩目西安。

主城耕新第二篇章:世家典藏

老城根·雍锦世家

城根下世府家,老城根主城耕新改善力作,为当代世家阶层打造繁华芯的隐贵生活主场,城市人居地标即将美好呈现。

主城耕新第三篇章:改善登峰

老城根·雍锦里

老城根匠心迭代之作,社区规制升维,产品价值登峰。以建面约135-180㎡改善终藏,为时代重构兼容繁华与静谧的森境生活,和鸣时代的主城向往。

·以园造景 森氧五园艺境绿洲

森境叠水流瀑园

水韵相映,自然声声入耳,区隔内外空间。让自然、艺术、生命力与社区完美相融,给予生活无限美好。

森栖谧语会客园

近享绿意,密语自然,感受森境园林开放、融合的生命力,让居者的社交与品味在潜移默化间生长。

森间童趣游乐园

森间亲子活动空间,让童趣回归野趣,在探索自然中成长,时刻感受森系社区蓬勃向上的力量。

森氧生命律动园

将健身场所置于开放的自然环境中,晨起舒动鲜氧,傍晚悠游养心,在生命与自然的融合中,悦享健康人生。

森系自然植物园

选取如丛生乌桕、丛生五角枫、丛生朴树、美国红枫、北美海棠、国槐、桂花、榉树、银杏等适宜西安本土生长的25种大小乔木珍植,通过设计搭配,营造时时有绿、处处皆景,自然与人文共生长的城芯私享植物园。

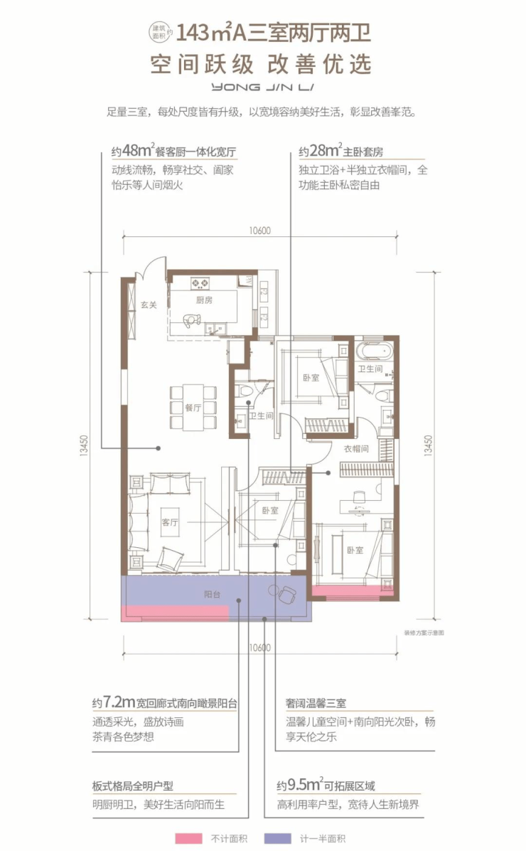
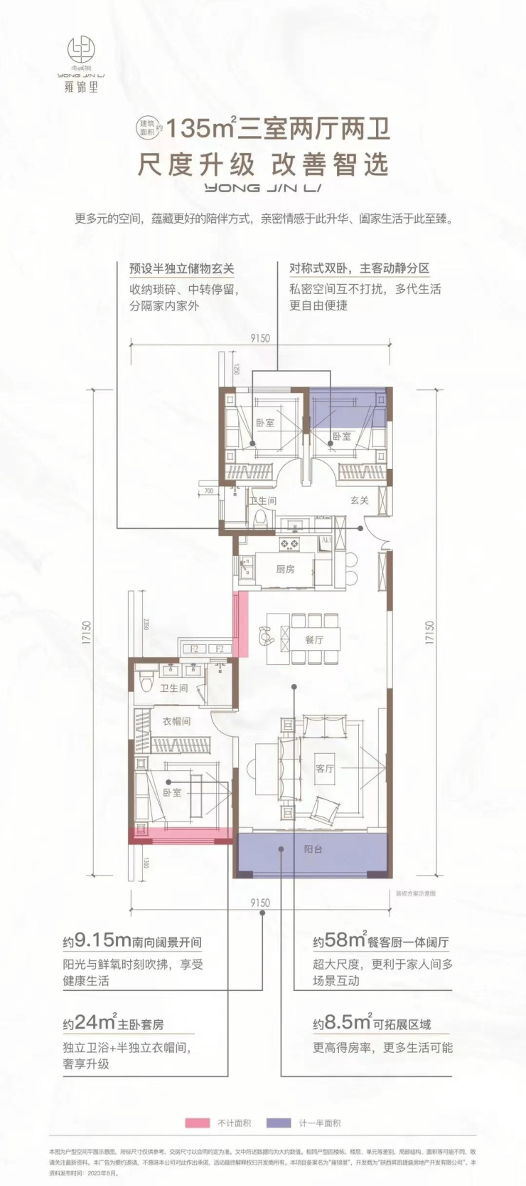
【宽奢人居:优改户型轻氧生活】

以匠心洞见进阶客群的改善需求,以典范户型助力人生进阶。

空间·时代典藏

户型鉴赏:351㎡

新加坡HBA担纲样板间精装设计

餐客一体化,动静皆雅

南向双主卧,美景相伴臻质敬呈

全套房设计,营造独立静谧生活

约7.2米会客端厅,营造人物社交场

约17.3米错层宽幕阳台,打造专属空中花园

效果图

户型鉴赏:376㎡

香港CCD担纲样板间精装设计

入户内玄关,中轴布局,私密尊崇

南向双主卧,悦享低密阔景生活

全套房设计,家庭成员各有其室

270度环幕边厅,汇聚生活&社交功能

约17.6米错层宽幕阳台,部分挑高营造IMAX无界视野

效果图

卓越于心精致于形

阅山境,满足少数人的眼光,呼应人生沉淀

心中有丘壑方行至高处

观世界,尊席有限,生活于此无限

【老城根雍锦里】售楼处TEL:029-88866690【售楼中心】

了解最新优惠折扣价格——请拨打售楼处

声明:本文由入驻焦点开放平台的作者撰写,除焦点官方账号外,观点仅代表作者本人,不代表焦点立场。