西安2025年商铺,碧桂园云顶丨建面约143-230㎡丨周边配套丨学校丨开发商介绍
扫描到手机,新闻随时看
扫一扫,用手机看文章
更加方便分享给朋友
西安「碧桂园云顶」
服务热线:029-88777723(咨询中心)
项目地址:029-88777723(致电发送详情地址)
在售户型图丨项目详情介绍丨剩余房源丨项目周边配套丨详细在线解答
如需了解最新房源信息_在售房源价格_请拨打上方服务热线电话!

建筑类型:高层
产权年限住宅:70年
容积率住宅:2.98
绿化率:32%
规划户数:1319户
楼层状况:总高15-32层
工程进度在建中,竣工时间:2026-06-30
物业管理费住宅:2.2元/m²/月
物业公司:碧桂园生活服务集团股份有限公司西安分公司
车位数:2969 (地上:48 个 地下:2921个)
车位比:1:2.25
【项目区位】

西安有多个外延中心(高新、经开、浐灞等),但是作为文化名片代表西安对话世界的唯有曲江。因此曲江也成为了闻名的富人聚集区。曲江一期为文化旅游度假区,二期引入金融服务和文化产业,打造了QCIC和CCBD两大核心。迄今都已发展成熟,大曲江格局已然形成,而碧桂园云顶正是选择了曲江,打造城市中的都市豪宅,坐拥全系成熟配套。

【医疗】
国际医疗综合体及航天总院、西安市人民医院、西北妇幼、强森医疗等。
【生态】
电竞主题公园、曲江文化运动公园、金辉运动公园、秦二世陵遗址公园、明秦宣王墓遗址公园等。

楼位分布图
D区本次推售
7#
建筑面积约190㎡品质人居作品

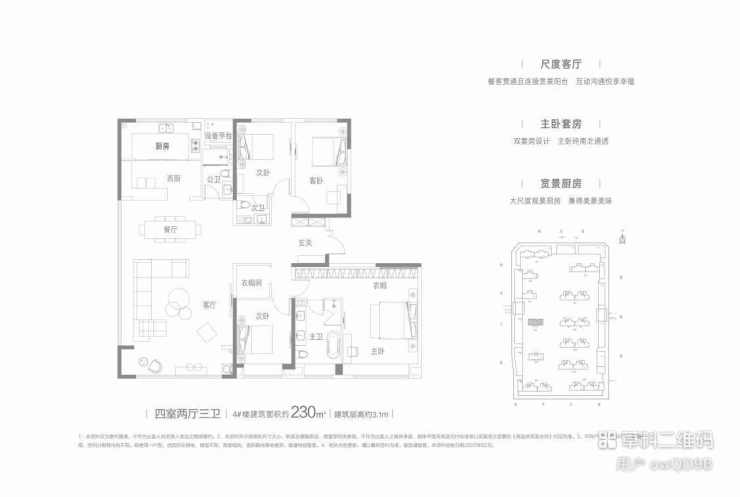
230户型
部分户型因位置、楼层、朝向的影响,相同面积的户型存在区别,以现场公示及实际销售双方签订合同为准



【亮点罗列】
【230㎡户型整体格局】2梯2户/1梯2户大平层豪宅,户型设计四室两厅三卫双套房,270 度无敌美景尽收眼底。
270°无敌视野,美好景观伺于脚下
约75 平米的餐客厅
约35 ㎡奢华主卧;
中西厨设置,考虑北方人的饮食习惯厨房操作台可做面食
双衣帽间设置
【碧桂园云顶】服务热线TEL:029-88777723【咨询中心】
了解最新优惠折扣价格——请拨打服务热线
声明:本文由入驻焦点开放平台的作者撰写,除焦点官方账号外,观点仅代表作者本人,不代表焦点立场。
