#商铺推荐老城根雍锦里—样板间图—容积率—建筑面积—楼盘动态

搜狐焦点咸阳站 2025-09-18 12:03:00
用手机看
扫描到手机,新闻随时看

扫一扫,用手机看文章
更加方便分享给朋友

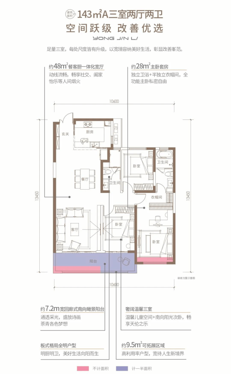
西安老城根雍锦里售楼处推出351㎡、376㎡户型,主打精装、双主卧、全套房设计,位于二环内,开发商陕西昇凯捷盛,2023年12月开盘,2026年6月交房。

西安「老城根雍锦里」

售楼处:029-88866690(营销中心)

售楼部地址:029-88866690(致电发送详情地址)

在售户型图丨项目详情介绍丨剩余房源丨项目周边配套丨详细在线解答

空间·时代典藏

户型鉴赏:351㎡

新加坡HBA担纲样板间精装设计

餐客一体化,动静皆雅

南向双主卧,美景相伴臻质敬呈

全套房设计,营造独立静谧生活

约7.2米会客端厅,营造人物社交场

约17.3米错层宽幕阳台,打造专属空中花园

效果图

户型鉴赏:376㎡

香港CCD担纲样板间精装设计

入户内玄关,中轴布局,私密尊崇

南向双主卧,悦享低密阔景生活

全套房设计,家庭成员各有其室

270度环幕边厅,汇聚生活&社交功能

约17.6米错层宽幕阳台,部分挑高营造IMAX无界视野

效果图

卓越于心精致于形

阅山境,满足少数人的眼光,呼应人生沉淀

心中有丘壑方行至高处

观世界,尊席有限,生活于此无限

基本信息

楼盘名称:老城根·雍锦里 在售

楼盘特点:一房一价 二环内 地铁沿线 商圈热盘 知名开发商

参考价格:17000元/m²

物业类型:住宅

开发商:陕西昇凯捷盛房地产开发有限公司

区域位置:二环内- 莲湖区- 星火路

楼盘地址:星火路与大兴东路十字西北角

最新开盘:2023年12月下旬

交房时间:2026年6月30日

售楼处地址:星火路与大兴东路十字西北角

主城耕新第一篇章:繁华启序

老城根G park

千年文脉与世界风潮碰撞融合,造就时尚生活集合体。更新老城面貌,焕新生活方式,引领时代潮流,让西安重新认识城西,让世界重新瞩目西安。

主城耕新第二篇章:世家典藏

老城根·雍锦世家

城根下世府家,老城根主城耕新改善力作,为当代世家阶层打造繁华芯的隐贵生活主场,城市人居地标即将美好呈现。

主城耕新第三篇章:改善登峰

老城根·雍锦里

老城根匠心迭代之作,社区规制升维,产品价值登峰。以建面约135-180㎡改善终藏,为时代重构兼容繁华与静谧的森境生活,和鸣时代的主城向往。

·以园入里 三境礼序贵隐城芯

一境高院门庭:高庭门仪 迎宾树阵

一重门庭一重礼,归家入府即入画,一重门庭+繁花迎宾树阵,彰显礼序与尊崇的同时,隔绝喧嚣,以境怡心,让归家成为一场沉淀烦杂的静心之旅。

二境森岛廊庭:栖心雅聚 林间会客

以绿洲草坪、栖心岛屿、归家幽径等景观为组团,打造归家+会客组团。邀友会客、出入小憩,卸下都会尘嚣,重拾出则都市、入则山水的生活格调。

三境私域园庭:曲径森境 礼序树阵

以多重树阵为入户主景,层层珍植与艺术装饰相映成趣,仿若一片茂然森域的微光入口,两侧银杏、国槐等列阵树阵,造极归家仪式感。迈入门庭门廊,开启一段森境自然游览之旅。

【宽奢人居:优改户型轻氧生活】

以匠心洞见进阶客群的改善需求,以典范户型助力人生进阶。

【稀贵地脉】

承载主城生活向往 重构改善人居范本

·惟有城芯 浓缩一城精粹价值

依照城市规划理念中的“同心圆模式”,城市中心的土地价值最高,并按照均匀的半径向城市外围递减,城市中心是城市永恒不变的价值焦点。

北京主城国贸CBD:中国对外开放窗口

上海主城徐家汇:上海十大商业中心之一

·城根源脉 千载一脉皇城贵土

“定鼎之基永固,无穷之业在斯”,1442年前,隋修建大兴城,城墙作为皇城根基屹立,自此划定千年西安格局与文明底色,凝结成老西安人的历史情结与自信,汇聚新西安人的主城向往,惟此,长安留名,城市留根。

【老城根雍锦里】售楼处TEL:029-88866690【售楼中心】

了解最新优惠折扣价格——请拨打售楼处

声明:本文由入驻焦点开放平台的作者撰写,除焦点官方账号外,观点仅代表作者本人,不代表焦点立场。