西安特价商铺!高科|轩阅里-区位介绍-责任国企-舒适三房-内部配套

搜狐焦点咸阳站 2025-10-19 06:39:00
用手机看
扫描到手机,新闻随时看

扫一扫,用手机看文章
更加方便分享给朋友

西安高科·轩阅里售楼处地址及联系方式,项目位于高新三环,主打舒适宜居,配套齐全,环境优美。

西安「高科|轩阅里」

售楼处:029-88866690(营销中心)

售楼部地址:029-88866690(致电发送详情地址)

在售户型图丨项目详情介绍丨剩余房源丨项目周边配套丨详细在线解答

【首开南地块】

【占地面积】:约23.6亩

【建筑面积】:约5.54万㎡

【总户数】:344户

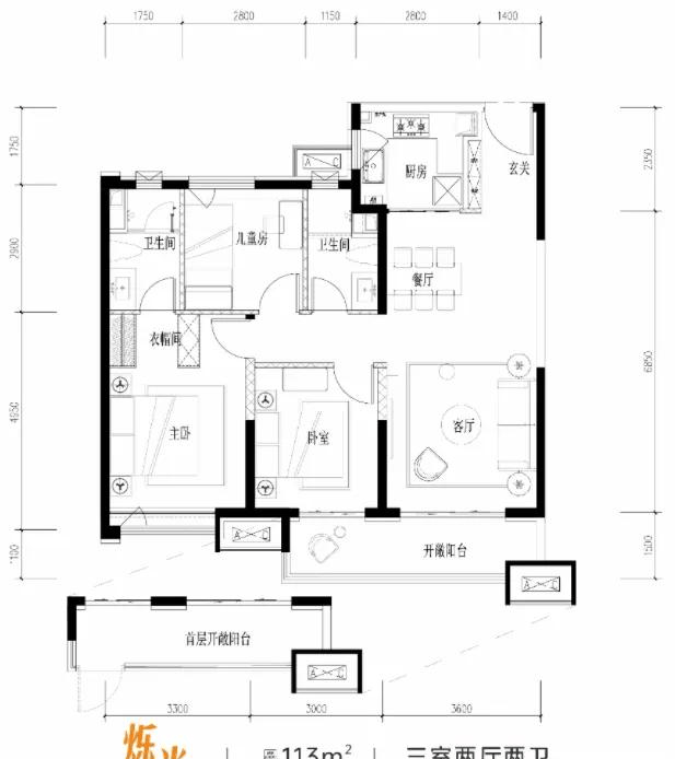
【户型面积】约99-113m²

【项目位置】鱼斗路与西三环相交东南角

责任国企

西安高科地产有限公司成立于2023年,诞生于西安高新区“双中心”建设全面启动、高科集团“转型升级、创新发展”全面加速之际,是高科集团机构改革后的核心子企业。

城市绿芯,公园簇拥诗意家

【公园近揽】高新悬浮公园、沣惠绿道、皂河生态景观带;

【城市绿芯】唐城墙遗址公园、昆明池遗址公园、西安人才公园。

【5大森氧自然花园】邻里艺术花园、儿童老人活动空间、邻里休闲花园、邻里花园(结合消防场地)、森林萌宠乐园,让风景成为邻里社交的背景,让业主享受全时段、全天候的自然诗意生活会客厅。

【美学建筑】超前公建化立面风格,以米白色、灰色涂料相搭配,典雅配色呈现,刷新高新三环风景线。

【舒适格局】

南北通透格局、餐客厨科学布局、流畅动线设计,主卧套房、双卫配置,晨洗晚漱更从容,极大提升舒适度;户户双卫配置,为一家人的晨起夜归更舒适、从容。

【高科·枫林九里|轩阅里】售楼处029-88866690【售楼中心】

了解最新优惠折扣价格——请拨打售楼中心!

声明:本文由入驻焦点开放平台的作者撰写,除焦点官方账号外,观点仅代表作者本人,不代表焦点立场。