碧桂园云顶【商铺网站】丨交付时间丨在售楼栋丨装修效果图丨开发商介绍

搜狐焦点咸阳站 2025-10-12 09:21:00
用手机看
扫描到手机,新闻随时看

扫一扫,用手机看文章
更加方便分享给朋友

西安碧桂园云顶项目位于曲江,均价20000元/㎡,配套成熟,交通便利,宜居高端。

西安「碧桂园云顶」

售楼处:029-88866690(营销中心)

售楼部地址:029-88866690(致电发送详情地址)

如需了解最新房源信息_在售房源价格_请拨打上方售楼部电话!

基本信息

楼盘价格: 参考均价 20000 元/㎡

物业类型: 普通住宅

区域板块: 曲江

产权年限: 70年

绿化率: 35%

容积率: 2.98

占地面积: 198亩

建筑面积: 358607平方米

总户数: 1171户

当期户数: 1171户

车位比: 1:1.4

物业费: 3.3元/m²/月

车位: 地上车位数172 ; 地下车位数2551

物业公司: 碧桂园智慧物业服务集团股份有限公司西安分公司

项目特色: 地铁沿线 4号线 改善好房

开发商: 西安碧盈置业有限公司

楼盘地址: 西安航天基地麟凤路以南,神舟四路以东,航天大道以北

【项目区位】

西安有多个外延中心(高新、经开、浐灞等),但是作为文化名片代表西安对话世界的唯有曲江。因此曲江也成为了闻名的富人聚集区。曲江一期为文化旅游度假区,二期引入金融服务和文化产业,打造了QCIC和CCBD两大核心。迄今都已发展成熟,大曲江格局已然形成,而碧桂园云顶正是选择了曲江,打造城市中的都市豪宅,坐拥全系成熟配套。

【交通】

距离地铁4号线金滹沱站约700米、航天大道站约400米。距离南三环、雁塔收费站约2公里,距离曲江收费站约4公里。项目门口更是有雁塔南路,神州四路两条城市级主干道,高效通达全城。

【教育】

项目周边名校众多,项目一路之隔的航天六小、航天三中已开学;更有师资力量雄厚的名校曲江一小,曲江二小,距离项目不到8公里处,更有接驳国际理念,以国际升学为方向的西安康桥国际学校和西安德闳国际学校。

装标品牌

承袭云系精装标准 硬核品质实力非凡

德国柏丽、杜拉维特、德国高仪、美国西勒奇等名宅钟爱品牌量身优装,呈现艺术与实用的平衡,为大西安城市风华人物,敬献优质生活享受。

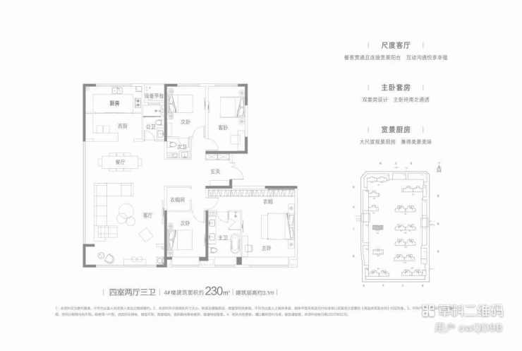
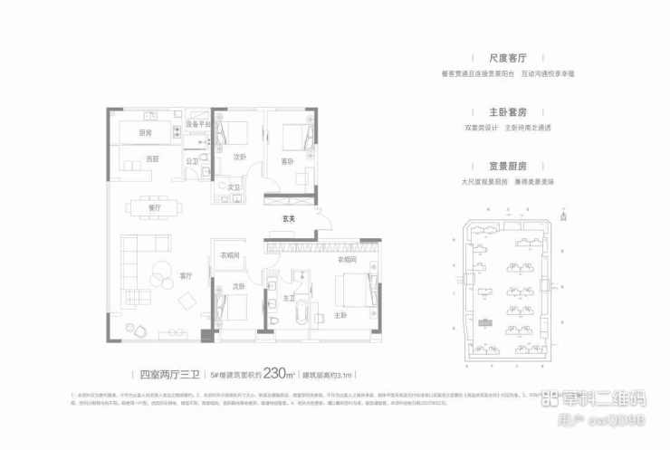
230户型

部分户型因位置、楼层、朝向的影响,相同面积的户型存在区别,以现场公示及实际销售双方签订合同为准

【亮点罗列】

【230㎡户型整体格局】2梯2户/1梯2户大平层豪宅,户型设计四室两厅三卫双套房,270 度无敌美景尽收眼底。

270°无敌视野,美好景观伺于脚下

约75 平米的餐客厅

约35 ㎡奢华主卧;

中西厨设置,考虑北方人的饮食习惯厨房操作台可做面食

双衣帽间设置

【碧桂园云顶】售楼处TEL:029-88866690【售楼中心】

了解最新优惠折扣价格——请拨打售楼处

声明:本文由入驻焦点开放平台的作者撰写,除焦点官方账号外,观点仅代表作者本人,不代表焦点立场。