华清园文津观澜【特价商铺】丨24小时热线丨装修效果图丨花园洋房丨周边配套
扫描到手机,新闻随时看
扫一扫,用手机看文章
更加方便分享给朋友
西安「华清园文津观澜」
售楼处:029-88866690(营销中心)
售楼部地址:029-88866690(致电发送详情地址)
基本信息
楼盘价格: 参考均价 11500 元/㎡
物业类型: 洋房 普通住宅
区域板块: 西咸新区
产权年限: 普通住宅:70年
项目特色: 教育资源 小户型 改善好房
开发商: 陕西佳莲房地产开发有限公司
楼盘地址: 兰池二路与秦宫二路东南侧
项目即将推售三期地块,规划建设净用地面积64亩,容积率2.68,绿化率为30%。三期地块南侧共分别设置2个人行及车行出入口,整个小区采用人车分流地下停车方式,共1265个车位。
三期参考二期产品和规划,进行了再次升级。整个三期共计规划12栋楼,共计918户,其中8栋为12层小高层产品,4栋为9层河景洋房产品,三期整体的楼层均不超过12层,结合项目临河属性,居住舒适度非常高。
项目建筑整体规划以科技感和学院风传承为本案设计主旨,立面设计色彩上墙面以浅色系仿石涂料为主,适当以咖色等较为跳跃的色彩营造整体活跃的风格特点,满足了不同业主的审美情趣,提升建筑品质。
周边配套:
教育 /“名校+”示范区 15年优教体系
秦汉新城率先实施“名校+”计划,与众多品牌教育集团合作,打造菁英教育体系,助力孩子精彩未来。
【幼教】:自配品质幼儿园,不出社区,即享“目送式”优教,降低家长接送时间成本。
【小学】:距后宰门小学秦汉分校约300米 ,约30个班,1350个学位,省级示范教育资源,举步可达。
【中学】:一路之隔省级示范高中清华附中秦汉学校,师资雄厚,文化氛围浓厚。
医疗:空军军医大学秦汉校区(建设中)、陕西省西咸新区人民医院,西安儿童医院经开院区,西安红会国际医院
生态 / 公园水岸簇拥 建筑与园林共鸣
秦汉新城渭水穿境,公园聚集,区域绿化率高达约70%,超越曲江、浐灞。
【公园】近距总面积103万平方米渭河湿地公园、约7628亩大秦文明园(包含秦咸阳城考古遗址公园、咸阳博物院、秦文明广场三大板块)。
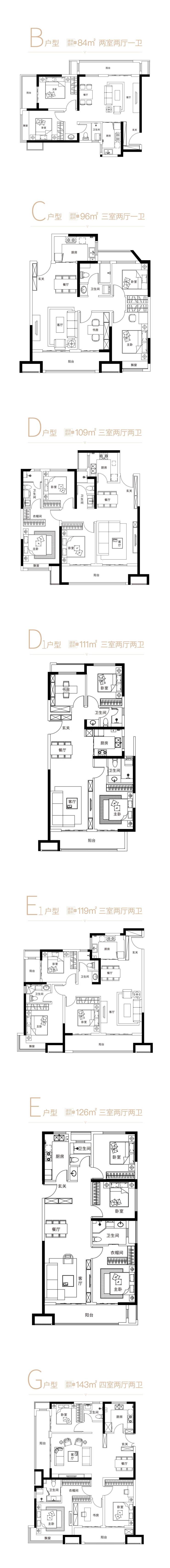
主推户型
【华清园文津观澜】售楼处TEL:029-88866690【售楼中心】
了解最新优惠折扣价格——请拨打售楼处
声明:本文由入驻焦点开放平台的作者撰写,除焦点官方账号外,观点仅代表作者本人,不代表焦点立场。
