【西安新房_买房】高新云熙港→改善好房→产品介绍→售楼中心→开发商直销
扫描到手机,新闻随时看
扫一扫,用手机看文章
更加方便分享给朋友
西安「高新云熙港」
售楼处:029-88777723 (营销中心)
售楼部地址:029-88777723 (致电发送详情地址)
在售户型图丨项目详情介绍丨剩余房源丨项目周边配套丨详细在线解答
占地面积: 约27.352亩
建筑面积: 约70482.60㎡
总户数: 342户
物业费: 3.3元/m²/月
车位: 625个
物业公司: 西安龙湖物业服务有限公司
楼盘户型建面:113-181㎡
装修情况: 带装修
交房时间: 预计2025年交付
开盘时间: 2023年07月22日开盘
售楼处地址: 西安市高新区三期规划六路与规划十六路交汇处
高新•云熙港由国企开发打造,开发商为西部机场集团置业(西安高新)有限公司,是西部机场集团临空产业发展有限公司的全资子公司。
西部机场集团临空产业发展有限公司的前身为西部机场集团置业(西安)有限公司,成立于2001年,开发的项目有:2006年西港国际花园,2007年西港国际大厦,2011年西港雅苑、西港商务大厦,2013年汉中西港•时代公馆,银川西港滨河雅居,2016年榆林西港锦天城,2017年兰州西港星汇国际、西港兰池郡,2021年空港新城凌云商务,2022年于高新CID打造宽幕瞰景平层——高新•云熙港。
周边配套:
【医疗配套】
三甲医院国际医学中心。
【生态配套】
区域内采用湿地生态理念打造的海绵城市,引沣河水,造中心人工湖,打造项目南侧的未来之瞳450亩湿地花园;
【商业配套】
附近的未来之瞳和金融创新区域目前已有金茂、迈科、兰桂坊等企业入驻,此外还有丝路前海园、永安渠商业项目(在建中)打造的地上地下集体验型购物、地下商业街区等。
【教育配套】
高新三十小、高新十一中新校区、第二十三小学、第五初级中学、第二十一幼儿园等。除此之外,项目北侧纬三十路以北、经二十一路以西设有规划小学和初中用地,项目西南侧经二十二路以西、规划十六路以南预留教育规划用地。项目靠近城南大学城。
高新•云熙港,项目位于高新CID,经二十二路以东、经二十路以西、规划十六路以北,与西安丝路国际金融中心未来之瞳相距约500米。
项目总占地约65亩,分两期开发,其中先西地块(DK-17)占地约37.6亩,建面约70280㎡,容积率约2.8,绿地率35%,共规划7栋住宅,其中5栋高层、2栋小高层,总户数464户,预计2024年年底交房。车位配比约1:2,地下停车位864个。
东地块(DK-18)占地约27.352亩,建筑面积约73556.54㎡,共计规划4栋住宅,均为高层产品,容积率为2.795,绿地率为36.36%,总停车位642个,总户数342户。
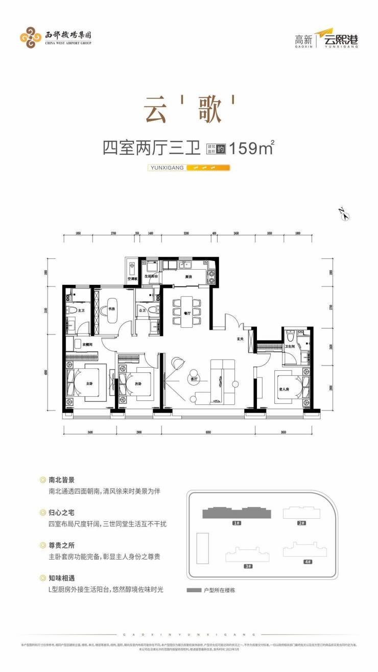
户丨型丨鉴丨赏
【高新云熙港】售楼处TEL:029-88777723 【售楼中心】
了解最新优惠折扣价格——请拨打售楼处
声明:本文由入驻焦点开放平台的作者撰写,除焦点官方账号外,观点仅代表作者本人,不代表焦点立场。
