西安2025年商铺,碧桂园云顶丨建面约143-230㎡丨在售楼栋丨物业公司丨公园
扫描到手机,新闻随时看
扫一扫,用手机看文章
更加方便分享给朋友
西安「碧桂园云顶」
售楼处:029-88866690(营销中心)
售楼部地址:029-88866690(致电发送详情地址)

建筑类型:高层
产权年限住宅:70年
容积率住宅:2.98
绿化率:32%
规划户数:1319户
楼层状况:总高15-32层
工程进度在建中,竣工时间:2026-06-30
物业管理费住宅:2.2元/m²/月
物业公司:碧桂园生活服务集团股份有限公司西安分公司
车位数:2969 (地上:48 个 地下:2921个)
车位比:1:2.25

【关于开发商】碧桂园控股有限公司,成立于1992年,是中国销售规模最大的城镇化住宅开发商之一。公司采用集中及标准化的运营模式,提供多元化的产品以契合不同市场需求。
截至2021年12月31日,公司开发项目遍布中国内地31个省、299个地级行政区划、1425个区县,项目总数达到3216个。2022年,碧桂园连续第六年入选《财富》世界500强榜单,位列第138位。

【医疗】
国际医疗综合体及航天总院、西安市人民医院、西北妇幼、强森医疗等。
【生态】
电竞主题公园、曲江文化运动公园、金辉运动公园、秦二世陵遗址公园、明秦宣王墓遗址公园等。

楼位分布图
D区本次推售
7#
建筑面积约190㎡品质人居作品

户型分析图
143户型
部分户型因位置、楼层、朝向的影响,相同面积的户型存在区别,以现场公示及实际销售双方签订合同为准

190户型
部分户型因位置、楼层、朝向的影响,相同面积的户型存在区别,以现场公示及实际销售双方签订合同为准

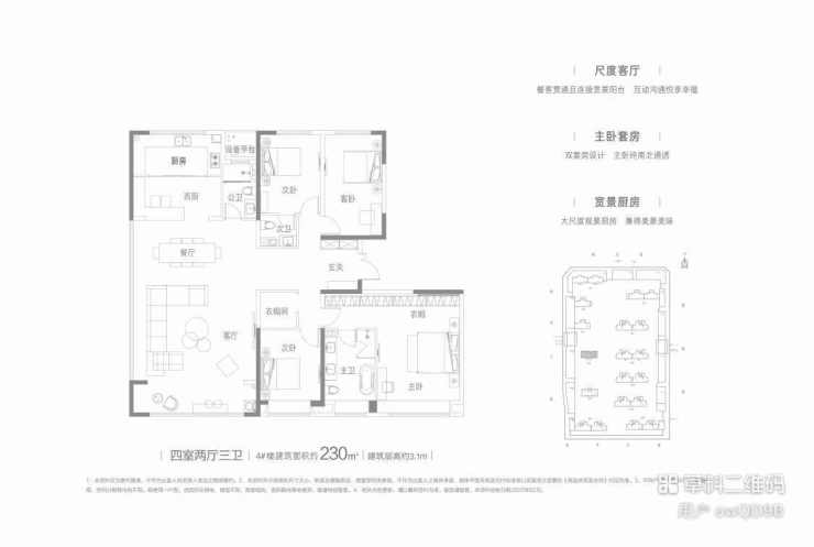
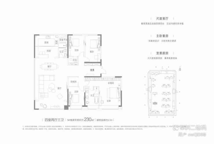
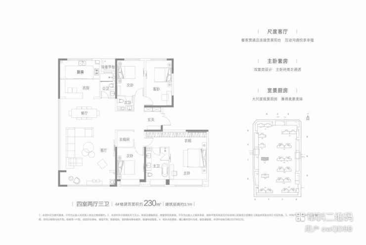
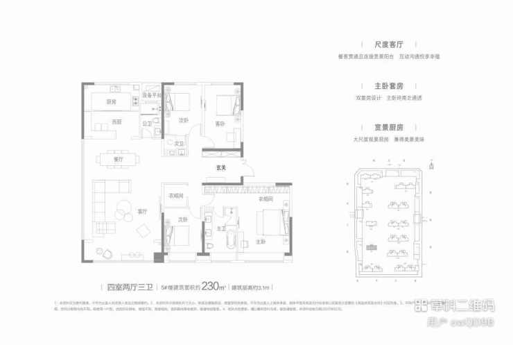
230户型
部分户型因位置、楼层、朝向的影响,相同面积的户型存在区别,以现场公示及实际销售双方签订合同为准
【碧桂园云顶】售楼处TEL:029-88866690【售楼中心】
了解最新优惠折扣价格——请拨打售楼处
声明:本文由入驻焦点开放平台的作者撰写,除焦点官方账号外,观点仅代表作者本人,不代表焦点立场。
