(营销中心)西安四腾科技园-在售楼栋-户型方正-街区商业-采光充足
扫描到手机,新闻随时看
扫一扫,用手机看文章
更加方便分享给朋友
西安「西安四腾科技园」
售楼处:029-88866618(营销中心)
售楼部地址:029-88866618(致电发送详情地址)
总占地:48.6亩
总建面:8万㎡
土地性质:工业用地(2020年12月)
车位:560个(地下,均可安装充电桩),非机动车345个
荷载:首层500kg/㎡,标准层300kg/㎡
电梯:进口芬兰通力
交付标准:毛坯
天然气:入户
项目分为2期开发,目前3#、4#、5#在售,预计2024年7月交付。
高新三期 · 西安四腾科技园
西安四腾科技园为高新三期重点项目,项目总投资额5.2亿元,占地约48.6亩,总建筑面积约8万平方米。
项目由西安四腾企业集团旗下企业——西安四腾新技术有限公司投资建设,集团扎根西安高新区30年,是医用空气净化领域的行业龙头。
在售产品
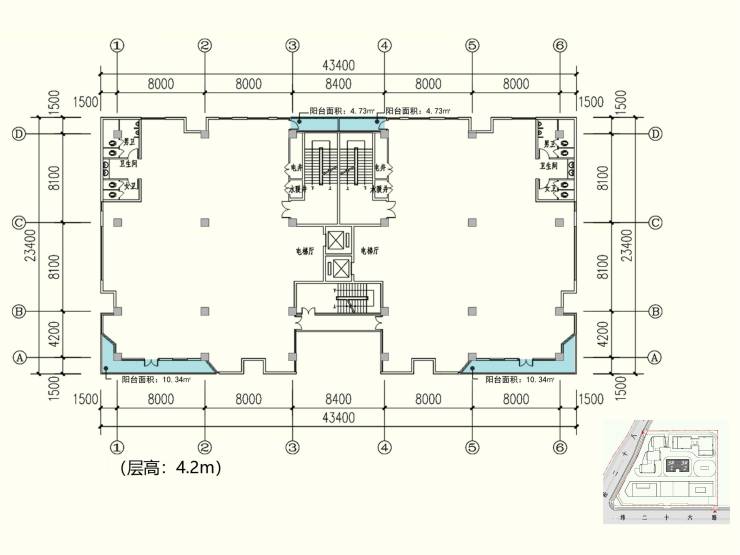
3# 可分割为东西两户销售,每户2342㎡
建筑面积:4684㎡
总高:5层
层高:首层、顶层5.1m,标准层4.2m
单层面积:约500㎡
项目1.5万㎡自持商业,大面积景观绿化+1250㎡水景,商业景观双配套,工作生活皆美好;
人车分流,车位充足;
花园独栋办公设计,低密度、高绿化,赠送楼顶花园、露台,企业总部的最佳选择彰显尊贵与实力;
3#实拍
【高新三期 · 西安四腾科技园】租售中心TEL:029-88866618【租售中心】
了解最新优惠折扣价格——请拨打租售中心
声明:本文由入驻焦点开放平台的作者撰写,除焦点官方账号外,观点仅代表作者本人,不代表焦点立场。
