(#商铺推荐)领航云熙-交付时间-小区配套-最新动态-基础信息
扫描到手机,新闻随时看
扫一扫,用手机看文章
更加方便分享给朋友
西安「领航云熙」
售楼处:029-88866690(营销中心)
售楼部地址:029-88866690(致电发送详情地址)

基本信息
楼盘名称领航·云熙 在售
楼盘特点:一房一价 无需摇号 二至三环 高性价比 配套纯熟
参考价格:15400元/m²
物业类型:住宅
开发商:西安茂顺置业有限公司
区域位置:二至三环- 高新- 科技路
楼盘地址:高新六路与德兴巷交叉口西100米
最新开盘:2023年9月6日
交房时间:2025年6月30日
售楼处地址:高新六路与德兴巷交叉口西100米

领航控股进入西安相继开发了长安壹品、长安壹栋、领航悦宸、领航天宸、领航•云熙等。
领航•云熙项目由领航控股旗下的西安主体公司西安民信实业有限公司的子公司西安茂順置业有限公司开发。

生态环境:
距离项目北侧200米有西安唐城墙遗址公园,在项目2公里范围内有牡丹苑和西安新纪元公园。公园可以给你健康的生活方式,漫步公园休养生息,乐享惬意自得的别样时光。
教育:项目3公里范围内有多所重点小学,中学及品质幼儿园。其中包括吉的堡幼儿园、莱安星座幼儿园、凯恩金堡国际幼儿园、品格紫薇臻品幼儿园、雁塔区第九幼儿园等。
小学:高新1小、高新2小、高新国际学校、日化小学、中华世纪城小学等,初中:高新一中、高新二中、高新国际中学等。(业主子女具体能上哪所学校,应以交房后教育局划分的学区为准)。

玻璃幕墙 公建化外立面
品质、细节、尊贵感拉满
热销户型 市面稀缺
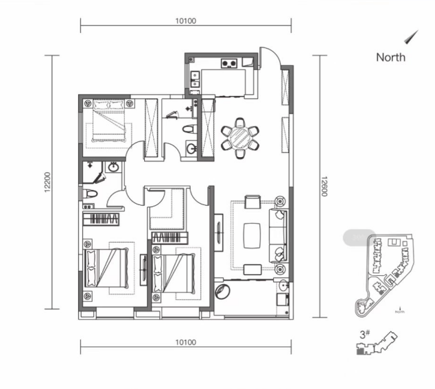
户型面积: 103-140㎡
功能划分:三室两厅、四室两厅
户型一:143㎡ 云峯 三室两厅两卫

户型二:141㎡ 云峯 四室两厅两卫
【领航云熙】售楼处TEL:029-88866690【售楼中心】
了解最新优惠折扣价格——请拨打售楼处
声明:本文由入驻焦点开放平台的作者撰写,除焦点官方账号外,观点仅代表作者本人,不代表焦点立场。
