(商铺百科)碧桂园云顶丨建面约143-230㎡丨产品介绍丨学校丨公园
扫描到手机,新闻随时看
扫一扫,用手机看文章
更加方便分享给朋友
西安「碧桂园云顶」
售楼处:029-88866690(营销中心)
售楼部地址:029-88866690(致电发送详情地址)
在售户型图丨项目详情介绍丨剩余房源丨项目周边配套丨详细在线解答
售楼中心_欢迎来电咨询!预约尊享优惠折扣_匠心钜制恭迎品鉴!
如需了解最新房源信息_在售房源价格_请拨打上方售楼部电话!

项目介绍
项目:碧桂园云顶D区
地址:西安曲江芙蓉西路与航天大道十字西北角
产权年限: 70年
绿地率: 32.76%
容积率:2.98
层高:143㎡层高3米、190㎡-230㎡层高3.1米
梯户比: 143㎡2梯3户、190㎡2梯2户、230㎡2梯2户/1梯2户
在推售楼栋:7#、9#、10#、11#、12#
物业公司: 碧桂园物业
装修状态: 精装
【项目区位】

西安有多个外延中心(高新、经开、浐灞等),但是作为文化名片代表西安对话世界的唯有曲江。因此曲江也成为了闻名的富人聚集区。曲江一期为文化旅游度假区,二期引入金融服务和文化产业,打造了QCIC和CCBD两大核心。迄今都已发展成熟,大曲江格局已然形成,而碧桂园云顶正是选择了曲江,打造城市中的都市豪宅,坐拥全系成熟配套。
【交通】

距离地铁4号线金滹沱站约700米、航天大道站约400米。距离南三环、雁塔收费站约2公里,距离曲江收费站约4公里。项目门口更是有雁塔南路,神州四路两条城市级主干道,高效通达全城。
【教育】
项目周边名校众多,项目一路之隔的航天六小、航天三中已开学;更有师资力量雄厚的名校曲江一小,曲江二小,距离项目不到8公里处,更有接驳国际理念,以国际升学为方向的西安康桥国际学校和西安德闳国际学校。
楼位分布图
D区本次推售
7#
建筑面积约190㎡品质人居作品

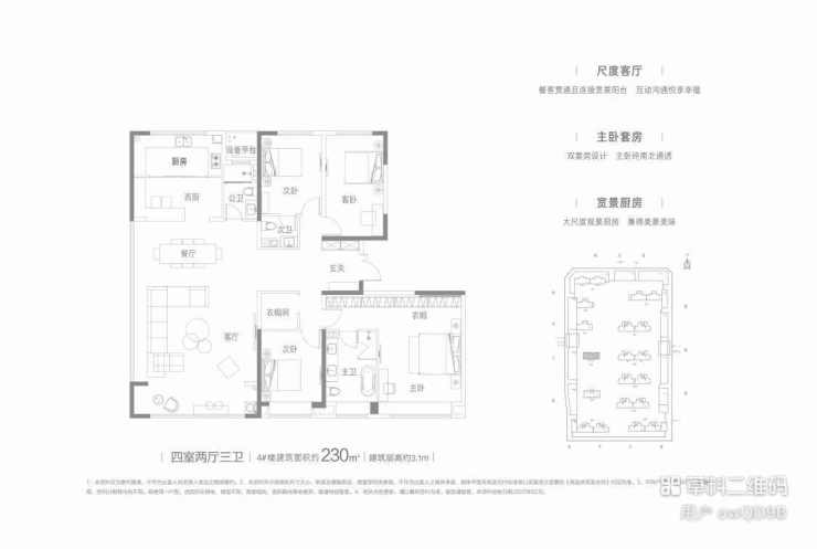
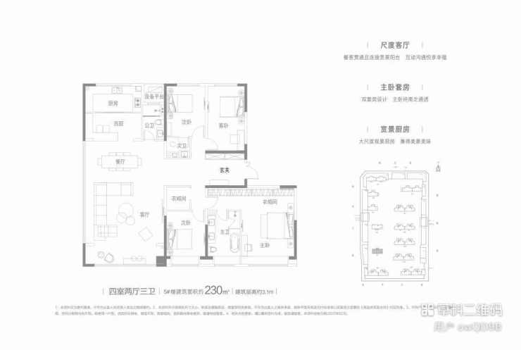
230户型
部分户型因位置、楼层、朝向的影响,相同面积的户型存在区别,以现场公示及实际销售双方签订合同为准



【亮点罗列】
【230㎡户型整体格局】2梯2户/1梯2户大平层豪宅,户型设计四室两厅三卫双套房,270 度无敌美景尽收眼底。
270°无敌视野,美好景观伺于脚下
约75 平米的餐客厅
约35 ㎡奢华主卧;
中西厨设置,考虑北方人的饮食习惯厨房操作台可做面食
双衣帽间设置
【碧桂园云顶】售楼处TEL:029-88866690【售楼中心】
了解最新优惠折扣价格——请拨打售楼处
声明:本文由入驻焦点开放平台的作者撰写,除焦点官方账号外,观点仅代表作者本人,不代表焦点立场。
