华清园文津观澜【特价商铺】丨容积率丨装修效果图丨户型展示丨周边配套
扫描到手机,新闻随时看
扫一扫,用手机看文章
更加方便分享给朋友
西安「华清园文津观澜」
售楼处:029-88866690(营销中心)
售楼部地址:029-88866690(致电发送详情地址)
在售户型图丨项目详情介绍丨剩余房源丨项目周边配套丨详细在线解答
项目概况:
华清园·文津观澜
▪建筑面积:约16.1万㎡
▪绿地率 :约30%
▪楼 高:9-12层
▪物业类型:小高层&洋房
▪产品面积:约84-143㎡
▪梯 户 比 :2T4、2T5
▪物业公司:万科物业
▪开 发 商 :陕西佳莲房地产开发有限公司
西咸新区沿承西安国际化大都市的空间结构,在新区形成“一河、两带、四轴、五组团”的空间结构。
一河: 渭河;两带:五陵塬遗址、周秦汉都城遗址;四轴:沿正阳大道拓展城市功能,对接西安钟楼南北线,构建大都市南北主轴带;以沣泾大道为轴带,对接大都市开发区经济发展带;以红光大道为轴带对接大都市东西主轴带,完善大都市发展格局; 以泾渭大道为轴带,连接秦咸阳宫与汉长安城遗址,构建大都市秦汉文化主轴带;五组团: 泾河新城、空港新城、秦汉新城、沣东新城和沣西新城。
在空间布局上,规划了沣东新城、沣西新城、秦汉新城、空港新城、泾河新城,构成“一区五城”的现代田园城市格局。
华清园•文津观澜就位于秦汉新城板块,是连接西安和咸阳的枢纽,距离北客站机场近,交通位置较好,也是连接空港经济区和高铁站经济区的纽带。
纵揽区域内优质资源,重塑悦居生活范本
教育
秦汉新城贯彻“名校+”战略,引入100%本科上线率的清华附中秦汉学校、后宰门小学秦汉分校,北京大学雄厚实力的燕园科教创新谷项目,等名校资源,助推秦汉教育体系再升级
交通
秦汉新城作为“北跨”重点区域,是大西安未来的黄金交通枢纽。地铁14号线已通车运营,可实现与2/3/4号线无缝畅连构建半小时生活圈。高速路网、西安咸阳国际机场、西安高铁站,打造多维度立体交通网络,可快速抵达灵宝、三门峡、甘肃等省市。
生态
拥河“北跨”,跨渭发展,渭河将成为西安的城中河,位处“北跨”战略门户的秦汉新城。将成为大西安未来城市核芯有“生态田园都市”之称的秦汉新城,区域绿化率高达约70%,拥享数公里渭河生态景观带,大秦文明园等生态绿地。
医疗
在颐养健康领域,四所三甲医院环绕,空军军医大学秦汉校区、西安红会国际医院,西安儿童医院经开院区(驾车约11分钟)陕西省人民医院西咸院区(驾车约13分钟)。

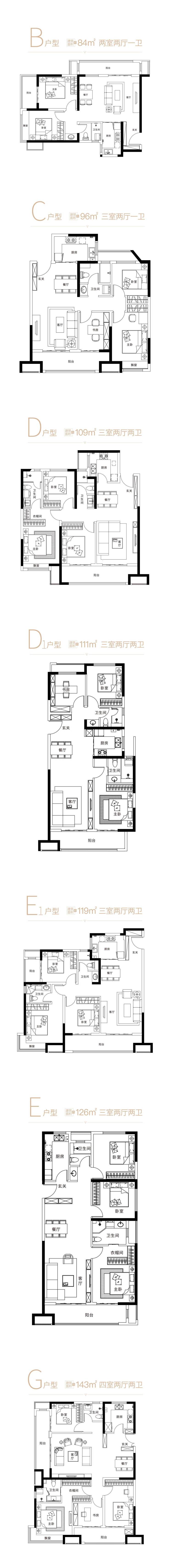
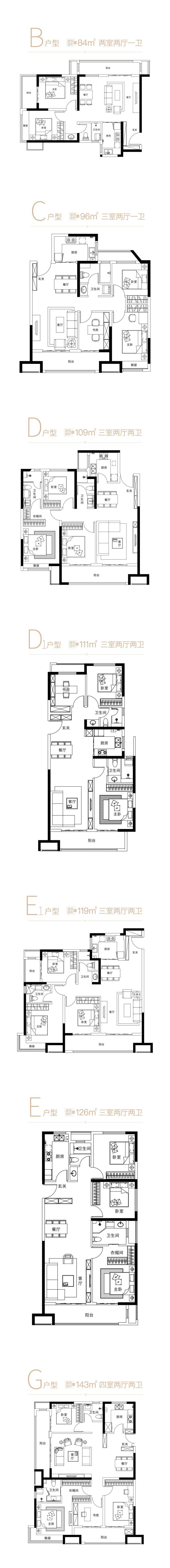
主推户型
【华清园文津观澜】售楼处TEL:029-88866690【售楼中心】
了解最新优惠折扣价格——请拨打售楼处
声明:本文由入驻焦点开放平台的作者撰写,除焦点官方账号外,观点仅代表作者本人,不代表焦点立场。
