西安西安四腾科技园(营销中心)-项目卖点-最新动态-楼盘相册-建筑类型

搜狐焦点咸阳站 2025-10-10 06:09:00
用手机看
扫描到手机,新闻随时看

扫一扫,用手机看文章
更加方便分享给朋友

西安四腾科技园售楼处位于高新三期,占地48.6亩,总建面8万㎡,提供560个地下车位,售罄户型为3#、4#、5#,预计2024年7月交付,配备地铁、绿化及产业园区。

西安「西安四腾科技园」

售楼处:029-88866618(营销中心)

售楼部地址:029-88866618(致电发送详情地址)

在售户型图丨项目详情介绍丨剩余房源丨项目周边配套丨详细在线解答

总占地:48.6亩

总建面:8万㎡

土地性质:工业用地(2020年12月)

车位:560个(地下,均可安装充电桩),非机动车345个

荷载:首层500kg/㎡,标准层300kg/㎡

电梯:进口芬兰通力

交付标准:毛坯

天然气:入户

项目分为2期开发,目前3#、4#、5#在售,预计2024年7月交付。

生态:200亩城市绿地公园、永安渠海绵城市生态公园、大仁遗址公园

医疗:西安国际医学中心

产业:中交科技城、三星环动力电池、中航电测、陕西光电科学院、中国科学院西安光学 研究院、中国通讯建设、未来之瞳超高层建筑群...

在售产品

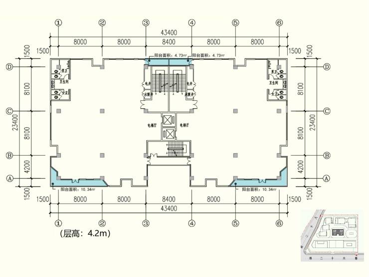
3# 可分割为东西两户销售,每户2342㎡

建筑面积:4684㎡

总高:5层

层高:首层、顶层5.1m,标准层4.2m

单层面积:约500㎡

项目卖点

高新三期核心,管委会新址;

三地铁环绕,高新云轨、15号线近在咫尺,地铁6号线距

自装空调,为企业节省运行成本;

5#实拍

【高新三期 · 西安四腾科技园】租售中心TEL:029-88866618【租售中心】

了解最新优惠折扣价格——请拨打租售中心

声明:本文由入驻焦点开放平台的作者撰写,除焦点官方账号外,观点仅代表作者本人,不代表焦点立场。