西安2025年,碧桂园云顶丨楼盘详情丨在售楼栋丨物业公司丨建筑面积
扫描到手机,新闻随时看
扫一扫,用手机看文章
更加方便分享给朋友
西安「碧桂园云顶」
售楼处:029-88777723 (营销中心)
售楼部地址:029-88777723 (致电发送详情地址)
在售户型图丨项目详情介绍丨剩余房源丨项目周边配套丨详细在线解答

建筑类型:高层
产权年限住宅:70年
容积率住宅:2.98
绿化率:32%
规划户数:1319户
楼层状况:总高15-32层
工程进度在建中,竣工时间:2026-06-30
物业管理费住宅:2.2元/m²/月
物业公司:碧桂园生活服务集团股份有限公司西安分公司
车位数:2969 (地上:48 个 地下:2921个)
车位比:1:2.25

【关于开发商】碧桂园控股有限公司,成立于1992年,是中国销售规模最大的城镇化住宅开发商之一。公司采用集中及标准化的运营模式,提供多元化的产品以契合不同市场需求。
截至2021年12月31日,公司开发项目遍布中国内地31个省、299个地级行政区划、1425个区县,项目总数达到3216个。2022年,碧桂园连续第六年入选《财富》世界500强榜单,位列第138位。

【医疗】
国际医疗综合体及航天总院、西安市人民医院、西北妇幼、强森医疗等。
【生态】
电竞主题公园、曲江文化运动公园、金辉运动公园、秦二世陵遗址公园、明秦宣王墓遗址公园等。

装标品牌
承袭云系精装标准 硬核品质实力非凡
集德国柏丽、杜拉维特、德国高仪、美国西勒奇等名宅钟爱品牌量身优装,呈现艺术与实用的平衡,为大西安城市风华人物,敬献优质生活享受。
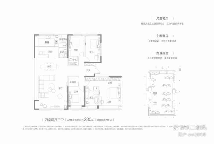
230户型
部分户型因位置、楼层、朝向的影响,相同面积的户型存在区别,以现场公示及实际销售双方签订合同为准



【亮点罗列】
【230㎡户型整体格局】2梯2户/1梯2户大平层豪宅,户型设计四室两厅三卫双套房,270 度无敌美景尽收眼底。
270°无敌视野,美好景观伺于脚下
约75 平米的餐客厅
约35 ㎡奢华主卧;
中西厨设置,考虑北方人的饮食习惯厨房操作台可做面食
双衣帽间设置
【碧桂园云顶】售楼处TEL:029-88777723 【售楼中心】
了解最新优惠折扣价格——请拨打售楼处
声明:本文由入驻焦点开放平台的作者撰写,除焦点官方账号外,观点仅代表作者本人,不代表焦点立场。
