白桦林FIC(售楼处)▁品牌开发商▁全能SOHO▁最新动态▁楼盘地址
扫描到手机,新闻随时看
扫一扫,用手机看文章
更加方便分享给朋友
西安「白桦林FIC」
售楼处:029-88866618(营销中心)
售楼部地址:029-88866618(致电发送详情地址)
在售户型图丨项目详情介绍丨剩余房源丨项目周边配套丨详细在线解答
【城北核芯区域】:
西安经开区,国务院批准的国家级开发区,国家新型工业化产业示范基地、国家新材料高技术产业基地,陕西省首个产值过千亿制造业基地,工业经济总量占全市1/3 。在全国230个国家级经开区,综合排名位列第23位,蝉联西部NO.1。2023年地区GDP突破千亿;已成为西安工业发展的主战场和顶梁柱,主要经济指标持续向好。
【景观设计】:
项目景观绿化与1800多亩汉城湖遗址公园遥相呼应,同时与自身庭院绿化、垂直绿化、廊桥绿化、屋顶绿化等形成五重绿化屏障,创造花园办公的舒适氛围。项目自身实现“15米内看树,15米以上观城”的垂直绿化氛围。
【商务配套】:
项目内设有健身中心、阳光泳池、商务酒店、员工餐厅以及约2万㎡的风情商业街区——金街里,为入驻企业提供完备的基础设施和服务,充分满足办公人群商务宴请、聚餐、社交、健身、休闲等需求。
【智能安防】:
项目配备各类机动车停车位,共2700余停车位,平均1.2个/100㎡停车位,在停车方式上采用无卡视频系统,反向寻车、无感支付的智能便捷停车系统;在安防方面提供智能安防系统,电子巡更系统,视频监控系统;楼宇采用了BA自控系统,地下车库设一氧化碳检测、二氧化碳空气检测以及高效节能的办公空间VRV空调系统、新风系统。
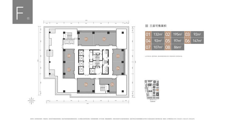
白桦林金融创新中心E栋,潜力资产 ,整栋/单套均可出售,稀缺价值凸显。
符合品质标准,层高约5.4米,总高17层,1-3层为商业,4-9层建面约58-117㎡,10-17层建面约1080㎡。
【F栋样板间实景】:
【白桦林FIC】售楼处TEL:029-88866618【售楼中心】
了解最新优惠折扣价格——请拨打售楼处
声明:本文由入驻焦点开放平台的作者撰写,除焦点官方账号外,观点仅代表作者本人,不代表焦点立场。
