华清园文津观澜【特价商铺】丨24小时热线丨装修效果图丨户型展示丨知名物业
扫描到手机,新闻随时看
扫一扫,用手机看文章
更加方便分享给朋友
西安「华清园文津观澜」
售楼处:029-88866690(营销中心)
售楼部地址:029-88866690(致电发送详情地址)
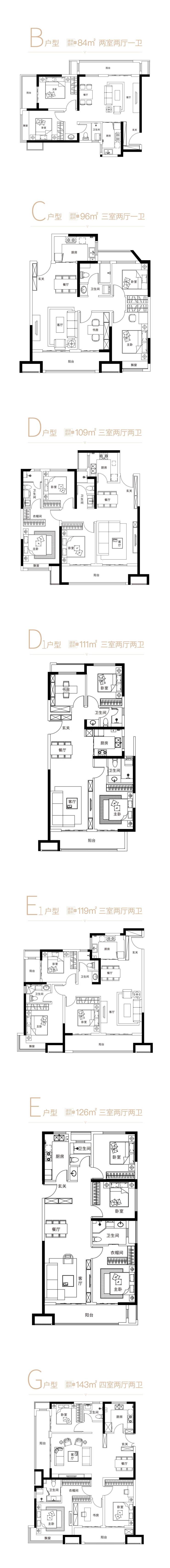
项目概况:
华清园·文津观澜
▪建筑面积:约16.1万㎡
▪绿地率 :约30%
▪楼 高:9-12层
▪物业类型:小高层&洋房
▪产品面积:约84-143㎡
▪梯 户 比 :2T4、2T5
▪物业公司:万科物业
▪开 发 商 :陕西佳莲房地产开发有限公司
西咸新区沿承西安国际化大都市的空间结构,在新区形成“一河、两带、四轴、五组团”的空间结构。
一河: 渭河;两带:五陵塬遗址、周秦汉都城遗址;四轴:沿正阳大道拓展城市功能,对接西安钟楼南北线,构建大都市南北主轴带;以沣泾大道为轴带,对接大都市开发区经济发展带;以红光大道为轴带对接大都市东西主轴带,完善大都市发展格局; 以泾渭大道为轴带,连接秦咸阳宫与汉长安城遗址,构建大都市秦汉文化主轴带;五组团: 泾河新城、空港新城、秦汉新城、沣东新城和沣西新城。
在空间布局上,规划了沣东新城、沣西新城、秦汉新城、空港新城、泾河新城,构成“一区五城”的现代田园城市格局。
华清园•文津观澜就位于秦汉新城板块,是连接西安和咸阳的枢纽,距离北客站机场近,交通位置较好,也是连接空港经济区和高铁站经济区的纽带。
商业配套:项目自身有园区配套,后期也会有集中性商业和社区底商。项目西侧约1公里有大秦文明园地下商业广场,以“秦文化”为主题,打造及文化艺术中心、秦风情街、文化艺术体验区全方位的商业模式。
生态环境:项目南侧一路之隔紧邻的就是渭河生态景观带,全长18公里,整个渭河生态景区绿化面积约2.93万亩,水面面积4963亩,囊括河滩景观带,滨河大道景观带和绿色长廊景观带等。
交通方面:项目东临秦宫三路,西至秦宫二路,北临兰池三路,南至兰池大道。项目北侧紧邻地铁14号线,该线路北接机场,横贯秦汉新城,途经北客站最终到达港务区。离项目最近的站点是地铁14号线秦宫站,直线距离大约1.3公里。项目周边还有多条公交线路开通(咸阳32路,咸阳33路,361路,362路,1010路,1145路,1140路,西咸39路),为业主的出行提供了极大的便利。与此同时,项目东侧2公里左右,秦汉收费站口的开通,也极大方便了项目到机场和市区的时间。
教育资源:项目分别位四期和六期设立幼儿园。除项目本身教育资源外,在项目北侧一路之隔是清华附中秦汉学校,是一所公办全日制寄宿制学校。项目西侧两公里是星河湾西交康桥学校,东侧约3公里有兰池学校(具体能上哪所学校要根据交房后有关部门划分为准)。
主推户型
【华清园文津观澜】售楼处TEL:029-88866690【售楼中心】
了解最新优惠折扣价格——请拨打售楼处
声明:本文由入驻焦点开放平台的作者撰写,除焦点官方账号外,观点仅代表作者本人,不代表焦点立场。
