西安华清园文津观澜商铺丨品牌开发商丨产品介绍丨花园洋房丨知名物业

搜狐焦点咸阳站 2025-09-28 14:42:00
用手机看
扫描到手机,新闻随时看

扫一扫,用手机看文章
更加方便分享给朋友

西安华清园文津观澜售楼处位于西咸新区,主打小户型,价格参考均价11500元/㎡,交通便利,属改善型住宅。

西安「华清园文津观澜」

售楼处:029-88866690(营销中心)

售楼部地址:029-88866690(致电发送详情地址)

如需了解最新房源信息_在售房源价格_请拨打上方售楼部电话!

基本信息

楼盘价格: 参考均价 11500 元/㎡

物业类型: 洋房 普通住宅

区域板块: 西咸新区

产权年限: 普通住宅:70年

项目特色: 教育资源 小户型 改善好房

开发商: 陕西佳莲房地产开发有限公司

楼盘地址: 兰池二路与秦宫二路东南侧

西咸新区沿承西安国际化大都市的空间结构,在新区形成“一河、两带、四轴、五组团”的空间结构。

一河: 渭河;两带:五陵塬遗址、周秦汉都城遗址;四轴:沿正阳大道拓展城市功能,对接西安钟楼南北线,构建大都市南北主轴带;以沣泾大道为轴带,对接大都市开发区经济发展带;以红光大道为轴带对接大都市东西主轴带,完善大都市发展格局; 以泾渭大道为轴带,连接秦咸阳宫与汉长安城遗址,构建大都市秦汉文化主轴带;五组团: 泾河新城、空港新城、秦汉新城、沣东新城和沣西新城。

在空间布局上,规划了沣东新城、沣西新城、秦汉新城、空港新城、泾河新城,构成“一区五城”的现代田园城市格局。

华清园•文津观澜就位于秦汉新城板块,是连接西安和咸阳的枢纽,距离北客站机场近,交通位置较好,也是连接空港经济区和高铁站经济区的纽带。

项目展示

园林规制“两轴四组团”社区园林景观

构筑集生态、人文于一体的当代都市文教住区

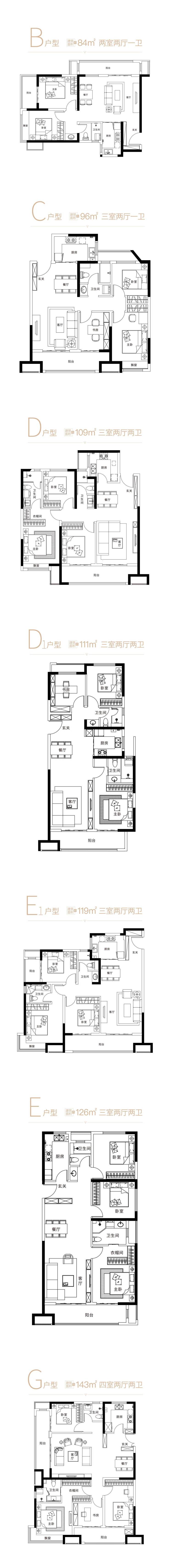
匠心铸造建筑面积约84-143㎡河居阔景小高层

主推户型

【华清园文津观澜】售楼处TEL:029-88866690【售楼中心】

了解最新优惠折扣价格——请拨打售楼处

声明:本文由入驻焦点开放平台的作者撰写,除焦点官方账号外,观点仅代表作者本人,不代表焦点立场。