2025西安商铺华清园文津观澜丨建面约86-143㎡丨一房一价丨户型展示丨售楼处电话
扫描到手机,新闻随时看
扫一扫,用手机看文章
更加方便分享给朋友
西安「华清园文津观澜」
售楼处:029-88866690(营销中心)
售楼部地址:029-88866690(致电发送详情地址)
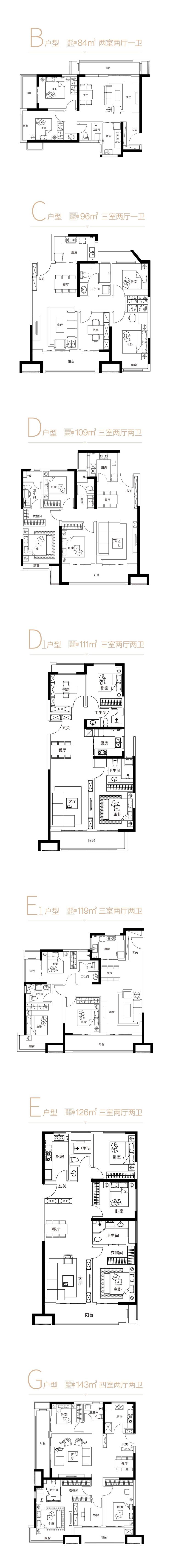
主推户型
项目概况:
华清园·文津观澜
▪建筑面积:约16.1万㎡
▪绿地率 :约30%
▪楼 高:9-12层
▪物业类型:小高层&洋房
▪产品面积:约84-143㎡
▪梯 户 比 :2T4、2T5
▪物业公司:万科物业
▪开 发 商 :陕西佳莲房地产开发有限公司
项目即将推售三期地块,规划建设净用地面积64亩,容积率2.68,绿化率为30%。三期地块南侧共分别设置2个人行及车行出入口,整个小区采用人车分流地下停车方式,共1265个车位。
三期参考二期产品和规划,进行了再次升级。整个三期共计规划12栋楼,共计918户,其中8栋为12层小高层产品,4栋为9层河景洋房产品,三期整体的楼层均不超过12层,结合项目临河属性,居住舒适度非常高。
项目建筑整体规划以科技感和学院风传承为本案设计主旨,立面设计色彩上墙面以浅色系仿石涂料为主,适当以咖色等较为跳跃的色彩营造整体活跃的风格特点,满足了不同业主的审美情趣,提升建筑品质。
【华清园文津观澜】售楼处TEL:029-88866690【售楼中心】
了解最新优惠折扣价格——请拨打售楼处
项目展示
园林规制“两轴四组团”社区园林景观
构筑集生态、人文于一体的当代都市文教住区
匠心铸造建筑面积约84-143㎡河居阔景小高层
声明:本文由入驻焦点开放平台的作者撰写,除焦点官方账号外,观点仅代表作者本人,不代表焦点立场。
