(商铺百科)碧桂园云顶丨交付时间丨周边配套丨装修效果图丨开发商介绍
扫描到手机,新闻随时看
扫一扫,用手机看文章
更加方便分享给朋友
西安「碧桂园云顶」
售楼处:029-88777723 (营销中心)
售楼部地址:029-88777723 (致电发送详情地址)
在售户型图丨项目详情介绍丨剩余房源丨项目周边配套丨详细在线解答

项目介绍
项目:碧桂园云顶D区
地址:西安曲江芙蓉西路与航天大道十字西北角
产权年限: 70年
绿地率: 32.76%
容积率:2.98
层高:143㎡层高3米、190㎡-230㎡层高3.1米
梯户比: 143㎡2梯3户、190㎡2梯2户、230㎡2梯2户/1梯2户
在推售楼栋:7#、9#、10#、11#、12#
物业公司: 碧桂园物业
装修状态: 精装
【项目区位】

西安有多个外延中心(高新、经开、浐灞等),但是作为文化名片代表西安对话世界的唯有曲江。因此曲江也成为了闻名的富人聚集区。曲江一期为文化旅游度假区,二期引入金融服务和文化产业,打造了QCIC和CCBD两大核心。迄今都已发展成熟,大曲江格局已然形成,而碧桂园云顶正是选择了曲江,打造城市中的都市豪宅,坐拥全系成熟配套。
中小学:曲江第一小学、曲江第二小学、曲江第三小学、曲江第四小学、曲江中学、曲江第一中学、曲江第二中学、德闳国际学校、康桥国际中学等 ,全龄国际化高端教育体系。
综合商场:曲江大悦城、芙蓉新天地、金地广场、正荣彩虹谷、环球广场、龙湖星悦荟、曲江银泰、曲江创意谷等购物中心,辐射约120万平方米国际居住区和历史旅游景区
医院:西安航天总医院、西安市人民医院、西北妇女儿童医院、西安市胸科医院,为健康保驾护航。
其他:曲江文化运动公园、曲江池公园、电竞主题公园、明秦世子公园、金辉运动公园、秦二世陵遗址公园、杜陵国家遗址公园七大人文生态,资源富集盛美。

装标品牌
承袭云系精装标准 硬核品质实力非凡
集德国柏丽、杜拉维特、德国高仪、美国西勒奇等名宅钟爱品牌量身优装,呈现艺术与实用的平衡,为大西安城市风华人物,敬献优质生活享受。
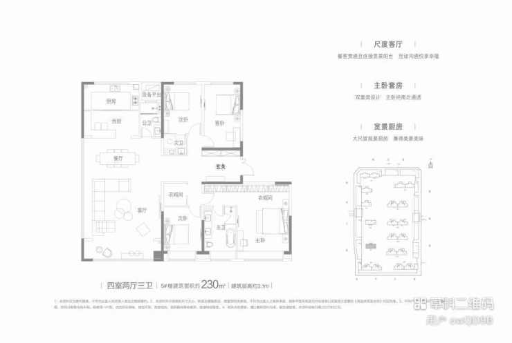
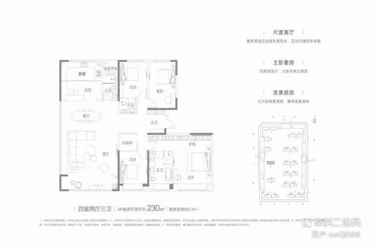
230户型
部分户型因位置、楼层、朝向的影响,相同面积的户型存在区别,以现场公示及实际销售双方签订合同为准



【亮点罗列】
【230㎡户型整体格局】2梯2户/1梯2户大平层豪宅,户型设计四室两厅三卫双套房,270 度无敌美景尽收眼底。
270°无敌视野,美好景观伺于脚下
约75 平米的餐客厅
约35 ㎡奢华主卧;
中西厨设置,考虑北方人的饮食习惯厨房操作台可做面食
双衣帽间设置
【碧桂园云顶】售楼处TEL:029-88777723 【售楼中心】
了解最新优惠折扣价格——请拨打售楼处
声明:本文由入驻焦点开放平台的作者撰写,除焦点官方账号外,观点仅代表作者本人,不代表焦点立场。
