(营销中心)西安四腾科技园-办公首选-最新动态-最新优惠-低单价
扫描到手机,新闻随时看
扫一扫,用手机看文章
更加方便分享给朋友
西安「西安四腾科技园」
售楼处:029-88866618(营销中心)
售楼部地址:029-88866618(致电发送详情地址)
在售户型图丨项目详情介绍丨剩余房源丨项目周边配套丨详细在线解答
总占地:48.6亩
总建面:8万㎡
土地性质:工业用地(2020年12月)
车位:560个(地下,均可安装充电桩),非机动车345个
荷载:首层500kg/㎡,标准层300kg/㎡
电梯:进口芬兰通力
交付标准:毛坯
天然气:入户
项目分为2期开发,目前3#、4#、5#在售,预计2024年7月交付。
高新三期 · 西安四腾科技园
西安四腾科技园为高新三期重点项目,项目总投资额5.2亿元,占地约48.6亩,总建筑面积约8万平方米。
项目由西安四腾企业集团旗下企业——西安四腾新技术有限公司投资建设,集团扎根西安高新区30年,是医用空气净化领域的行业龙头
在售产品
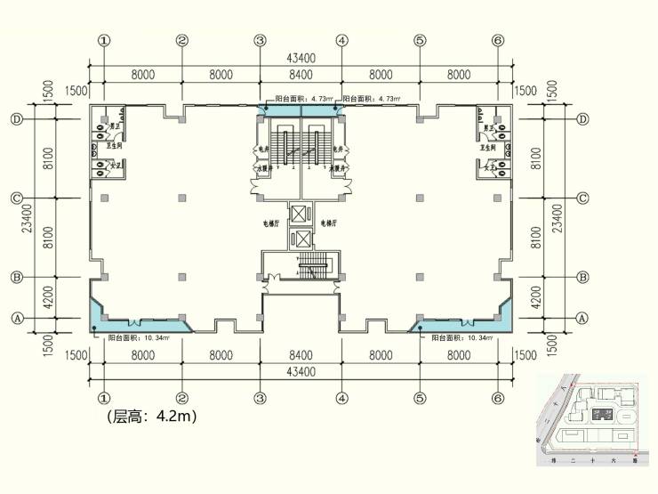
3# 可分割为东西两户销售,每户2342㎡
建筑面积:4684㎡
总高:5层
层高:首层、顶层5.1m,标准层4.2m
单层面积:约500㎡
偏心筒设计,户型方正,空间利用更自由、灵活;
零公摊,得房率超乎想象;
低单价,高性价比,首付30%轻松起航。
项目实景
【高新三期 · 西安四腾科技园】租售中心TEL:029-88866618【租售中心】
了解最新优惠折扣价格——请拨打租售中心
声明:本文由入驻焦点开放平台的作者撰写,除焦点官方账号外,观点仅代表作者本人,不代表焦点立场。
