2025西安商铺华清园文津观澜丨容积率丨产品介绍丨户型展示丨售楼处电话
扫描到手机,新闻随时看
扫一扫,用手机看文章
更加方便分享给朋友
西安「华清园文津观澜」
售楼处:029-88866690(营销中心)
售楼部地址:029-88866690(致电发送详情地址)
在售户型图丨项目详情介绍丨剩余房源丨项目周边配套丨详细在线解答
小区规划
绿化率: 30%
容积率: 2.67
占地面积: 约64亩
建筑面积: 16万方
总户数: 918户
当期户数: 906户
车位比: 1:1.2
物业费: 2.2元/㎡·月
车位: 共1021个车位
物业公司: 西安市万科物业服务有限公司
项目即将推售三期地块,规划建设净用地面积64亩,容积率2.68,绿化率为30%。三期地块南侧共分别设置2个人行及车行出入口,整个小区采用人车分流地下停车方式,共1265个车位。
三期参考二期产品和规划,进行了再次升级。整个三期共计规划12栋楼,共计918户,其中8栋为12层小高层产品,4栋为9层河景洋房产品,三期整体的楼层均不超过12层,结合项目临河属性,居住舒适度非常高。
项目建筑整体规划以科技感和学院风传承为本案设计主旨,立面设计色彩上墙面以浅色系仿石涂料为主,适当以咖色等较为跳跃的色彩营造整体活跃的风格特点,满足了不同业主的审美情趣,提升建筑品质。
项目展示
园林规制“两轴四组团”社区园林景观
构筑集生态、人文于一体的当代都市文教住区
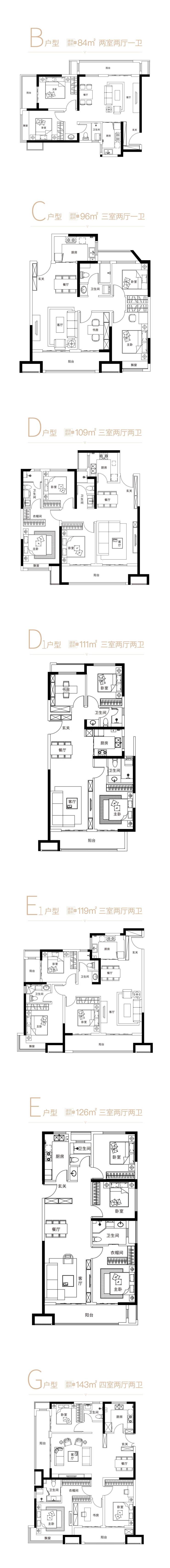
匠心铸造建筑面积约84-143㎡河居阔景小高层
主推户型
【华清园文津观澜】售楼处TEL:029-88866690【售楼中心】
了解最新优惠折扣价格——请拨打售楼处
声明:本文由入驻焦点开放平台的作者撰写,除焦点官方账号外,观点仅代表作者本人,不代表焦点立场。
