西安老城根雍锦里商铺-租售中心—地铁沿线-在售户型—开发商直销—五证齐全
扫描到手机,新闻随时看
扫一扫,用手机看文章
更加方便分享给朋友
西安「老城根雍锦里」
服务热线:029-88777792(咨询中心)
项目地址:029-88777792(致电发送详情地址)

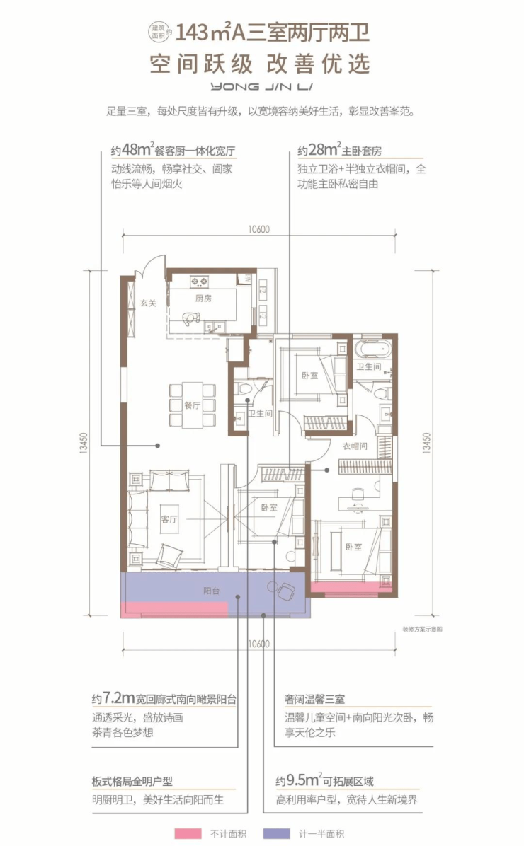
基本信息
楼盘名称:老城根·雍锦里 在售
楼盘特点:一房一价 二环内 地铁沿线 商圈热盘 知名开发商
参考价格:17000元/m²
物业类型:住宅
开发商:陕西昇凯捷盛房地产开发有限公司
区域位置:二环内- 莲湖区- 星火路
楼盘地址:星火路与大兴东路十字西北角
最新开盘:2023年12月下旬
交房时间:2026年6月30日
售楼处地址:星火路与大兴东路十字西北角
【城根匠作】
本土名企耕新城根 营造都会繁华谧境
【生活大师:老城根文化产业集团】
老城根文化产业集团,西安本土实力名企。在城墙根下孕育而生,致力于更新城市面貌,创造更有价值、更现代的都会生活空间,持续焕新主城生活方式。

【繁华焕新:老城根G park潮流峯标】
·西安时尚潮流首席商圈
规模大:西安首个公园式商业娱乐大道、占地291.79亩,西安文商娱潮流中芯;
业态全:集餐饮、娱乐、休闲、购物、商务、文化、观光于一体,不止是潮流商业,更是目的地型微度假社交场所;
体验新:欢乐广场、水舞广场、水晶广场、悬浮天幕,街区式体验。

会呼吸的质感建筑
东方元素融贯现代匠艺 筑就隐奢静谧的森质臻宅
【森感建筑:栖心雅宅美学封面】
·公建化外立面典范形制
中式横向肌理、超高窗墙比、“黄韵银律”等功能形制与建筑美学有机统一,阳光清风无界,采光视野扩容,以居所品质彰显身份认知。
·纯板式高阶建筑格局
270°瞰景视野、约8%-13%高赠送宽奢户型、3.05M层高、约10M奢阔南向开间(除135㎡户型)、南北向通透对流,“会呼吸”的好房子。

【森质细节:雕琢细节精致生活】
·酒店式透景归家大堂
归家大堂以酒店式接待为蓝本,空间、材质及灯光多维度组合,内部枯山水与外部森氧园景对韵映照,艺术与生活完美融合,令到访者切身体验到归家的仪式感、自由感。

·地下车库精装双大堂
匠筑地库归家空间、休憩区,营造双入户大堂,连接住宅地上地下功能空间,凸显豪华与尊贵,高定生活从归家开始。

·精装电梯前室/走廊等公区
电梯前室/走廊等公区采用墙砖/地砖精装,营造品质归家氛围。一层透景玻璃,将景观引入室内,做到处处有景。

·以园入里 三境礼序贵隐城芯
一境高院门庭:高庭门仪 迎宾树阵
一重门庭一重礼,归家入府即入画,一重门庭+繁花迎宾树阵,彰显礼序与尊崇的同时,隔绝喧嚣,以境怡心,让归家成为一场沉淀烦杂的静心之旅。

二境森岛廊庭:栖心雅聚 林间会客
以绿洲草坪、栖心岛屿、归家幽径等景观为组团,打造归家+会客组团。邀友会客、出入小憩,卸下都会尘嚣,重拾出则都市、入则山水的生活格调。

三境私域园庭:曲径森境 礼序树阵
以多重树阵为入户主景,层层珍植与艺术装饰相映成趣,仿若一片茂然森域的微光入口,两侧银杏、国槐等列阵树阵,造极归家仪式感。迈入门庭门廊,开启一段森境自然游览之旅。

【宽奢人居:优改户型轻氧生活】
以匠心洞见进阶客群的改善需求,以典范户型助力人生进阶。



空间·时代典藏
户型鉴赏:351㎡
新加坡HBA担纲样板间精装设计
餐客一体化,动静皆雅
南向双主卧,美景相伴臻质敬呈
全套房设计,营造独立静谧生活
约7.2米会客端厅,营造人物社交场
约17.3米错层宽幕阳台,打造专属空中花园
效果图
户型鉴赏:376㎡
香港CCD担纲样板间精装设计
入户内玄关,中轴布局,私密尊崇
南向双主卧,悦享低密阔景生活
全套房设计,家庭成员各有其室
270度环幕边厅,汇聚生活&社交功能
约17.6米错层宽幕阳台,部分挑高营造IMAX无界视野

效果图
卓越于心精致于形
阅山境,满足少数人的眼光,呼应人生沉淀
心中有丘壑方行至高处
观世界,尊席有限,生活于此无限
【老城根雍锦里】服务热线TEL:029-88777792【咨询中心】
了解最新优惠折扣价格——请拨打服务热线
声明:本文由入驻焦点开放平台的作者撰写,除焦点官方账号外,观点仅代表作者本人,不代表焦点立场。
