(营销中心)西安四腾科技园-在售楼栋-整层独栋-街区商业-低单价
扫描到手机,新闻随时看
扫一扫,用手机看文章
更加方便分享给朋友
西安「西安四腾科技园」
服务热线:029-88866618(咨询中心)
项目地址:029-88866618(致电发送详情地址)
在售户型图丨项目详情介绍丨剩余房源丨项目周边配套丨详细在线解答
总占地:48.6亩
总建面:8万㎡
土地性质:工业用地(2020年12月)
车位:560个(地下,均可安装充电桩),非机动车345个
荷载:首层500kg/㎡,标准层300kg/㎡
电梯:进口芬兰通力
交付标准:毛坯
天然气:入户
项目分为2期开发,目前3#、4#、5#在售,预计2024年7月交付。
项目配套
西安四腾科技园坐落于西安高新技术开发区的核心地带,北依北斗路,西傍经二十八路,南邻纬二十六路,东至经二十六路。这里不仅是科技创新的摇篮,更是未来企业发展的热土。
交通:高新云轨、地铁15号线、地铁6号线
商业:永安渠商业、阳光新天地;项目自带1.5万㎡商业
在售产品
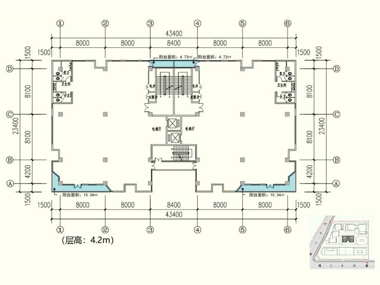
3# 可分割为东西两户销售,每户2342㎡
建筑面积:4684㎡
总高:5层
层高:首层、顶层5.1m,标准层4.2m
单层面积:约500㎡
偏心筒设计,户型方正,空间利用更自由、灵活;
零公摊,得房率超乎想象;
低单价,高性价比,首付30%轻松起航。
4#实拍
【高新三期 · 西安四腾科技园】服务热线TEL:029-88866618【咨询中心】
了解最新优惠折扣价格——请拨打服务热线
声明:本文由入驻焦点开放平台的作者撰写,除焦点官方账号外,观点仅代表作者本人,不代表焦点立场。
