(营销中心)华清园文津观澜丨建面约86-143㎡丨价值分析丨花园洋房丨最新动态
扫描到手机,新闻随时看
扫一扫,用手机看文章
更加方便分享给朋友
西安「华清园文津观澜」
售楼处:029-68866626(营销中心)
售楼部地址:029-68866626(致电发送详情地址)
如需了解最新房源信息_在售房源价格_请拨打上方售楼部电话!
基本信息
楼盘价格: 参考均价 11500 元/㎡
物业类型: 洋房 普通住宅
区域板块: 西咸新区
产权年限: 普通住宅:70年
项目特色: 教育资源 小户型 改善好房
开发商: 陕西佳莲房地产开发有限公司
楼盘地址: 兰池二路与秦宫二路东南侧
在了解项目之前,我们先来看看华清园•文津观澜项目品牌,是启迪控股旗下子公司华清园,启迪控股也是国家现代服务业示范单位。依托于清华大学设立,是清华科技园开发建设和运营管理单位。
项目整体占地约370亩,总建面约78万㎡,分六期开发。容积率低至2.8,绿化率高达35%,共规划47栋楼,其中住宅43栋,写字楼4栋,总户数3712户,规划车位5550个(住宅4289个,商业1261个)。
项目一期共规划11栋楼,已于2018年5月首推全部售罄。二期位于一期南侧,占地约46亩,是由6栋20层的高层和3栋6+1的洋房组成,目前二期也已经售罄。
周边配套:
教育 /“名校+”示范区 15年优教体系
秦汉新城率先实施“名校+”计划,与众多品牌教育集团合作,打造菁英教育体系,助力孩子精彩未来。
【幼教】:自配品质幼儿园,不出社区,即享“目送式”优教,降低家长接送时间成本。
【小学】:距后宰门小学秦汉分校约300米 ,约30个班,1350个学位,省级示范教育资源,举步可达。
【中学】:一路之隔省级示范高中清华附中秦汉学校,师资雄厚,文化氛围浓厚。
医疗:空军军医大学秦汉校区(建设中)、陕西省西咸新区人民医院,西安儿童医院经开院区,西安红会国际医院
生态 / 公园水岸簇拥 建筑与园林共鸣
秦汉新城渭水穿境,公园聚集,区域绿化率高达约70%,超越曲江、浐灞。
【公园】近距总面积103万平方米渭河湿地公园、约7628亩大秦文明园(包含秦咸阳城考古遗址公园、咸阳博物院、秦文明广场三大板块)。
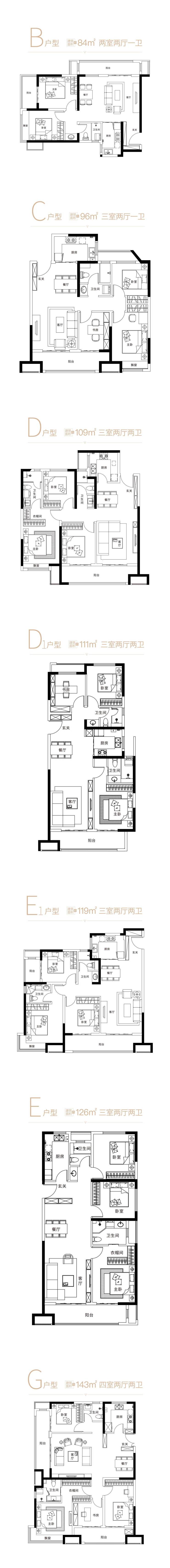
主推户型
【华清园文津观澜】售楼处TEL:029-68866626【售楼中心】
了解最新优惠折扣价格——请拨打售楼处
声明:本文由入驻焦点开放平台的作者撰写,除焦点官方账号外,观点仅代表作者本人,不代表焦点立场。
