老城根雍锦里商铺规划公示!—样板间图—位置图—建筑面积—基本信息
扫描到手机,新闻随时看
扫一扫,用手机看文章
更加方便分享给朋友
西安「老城根雍锦里」
售楼处:029-88866690(营销中心)
售楼部地址:029-88866690(致电发送详情地址)
在售户型图丨项目详情介绍丨剩余房源丨项目周边配套丨详细在线解答
售楼中心_欢迎来电咨询!预约尊享优惠折扣_匠心钜制恭迎品鉴!
如需了解最新房源信息_在售房源价格_请拨打上方售楼部电话!

基本信息
楼盘名称:老城根·雍锦里 在售
楼盘特点:一房一价 二环内 地铁沿线 商圈热盘 知名开发商
参考价格:17000元/m²
物业类型:住宅
开发商:陕西昇凯捷盛房地产开发有限公司
区域位置:二环内- 莲湖区- 星火路
楼盘地址:星火路与大兴东路十字西北角
最新开盘:2023年12月下旬
交房时间:2026年6月30日
售楼处地址:星火路与大兴东路十字西北角
·潮玩圣地:别人的追逐,不过是你的生活
西北旗舰店/首店聚集地:
迪奥、AJ、POPMART、lululemon、Coach、MK、%、MLB等
各大品牌聚合场:盒马/方所书店/开顿影城/海底捞等
品质餐饮先享区:眉州东坡、老铺烤鸭、仟滕日料、靓靓蒸虾、薇酌饮、倾城瘾食等

楼市新政,二环内持续限购,土地价值一城认可,有限核芯资产注定引人抢藏。
西安2023年二批次土地出让计划,碑林、莲湖、新城主城三区供地相加,仅占总出让面积约3.54%(数据来源:西安楼市情报公众号),主城新地已近告罄,未来难有新盘供应,进驻主城机会越来越少。

全维定制管家服务
六维美好生活【硬实力】 商管式尊崇服务
·商管服务资质 醇熟团队【品牌力】
老城根G park商管团队同款专业化物业管理服务公司,以客户为中心,以服务为载体,以品质为目标,为业主创造品质生活。
·定制服务软件 现代物业【智慧力】
一站式物业服务软件,线上办结各类业务,让生活更加智慧便捷。

·全维社区服务 全龄生活【精致力】
内部:工具提供、代办代购、快速响应、老弱关照、社区运维等全维服务
外部:周边资源整合,咨询优享服务。
·透明沟通服务 业主权益【保障力】
建立专属管家团队,24小时反馈/回访制度,与业主即时沟通服务。建立以户为单位的业主档案,透明收费、健全管理,扩大业主的知情权、参与权和监督权。
·增值配套服务 幸福生活【呵护力】
十六项专属增值服务,关注业主需求,私属服务呵护日常生活。
房屋托管、家政保洁、搬家服务、洗车服务、家庭医生、代驾服务、房屋装修、智慧维修、养老医护、健康体检、衣物干洗、皮具保养、康体健身、文件打印、宠物医院、绿植养护。
·商管活动互联 菁英社群【运营力】
“老城根物业”“老城根Gpark商业街”“西安方所”三大主体联合,打通会员体系,引入高阶资源、专属权益、社群活动福利等,让业主日常生活更加多元美好。

·以园造景 森氧五园艺境绿洲
森境叠水流瀑园
水韵相映,自然声声入耳,区隔内外空间。让自然、艺术、生命力与社区完美相融,给予生活无限美好。

森栖谧语会客园
近享绿意,密语自然,感受森境园林开放、融合的生命力,让居者的社交与品味在潜移默化间生长。

森间童趣游乐园
森间亲子活动空间,让童趣回归野趣,在探索自然中成长,时刻感受森系社区蓬勃向上的力量。

森氧生命律动园
将健身场所置于开放的自然环境中,晨起舒动鲜氧,傍晚悠游养心,在生命与自然的融合中,悦享健康人生。

森系自然植物园
选取如丛生乌桕、丛生五角枫、丛生朴树、美国红枫、北美海棠、国槐、桂花、榉树、银杏等适宜西安本土生长的25种大小乔木珍植,通过设计搭配,营造时时有绿、处处皆景,自然与人文共生长的城芯私享植物园。

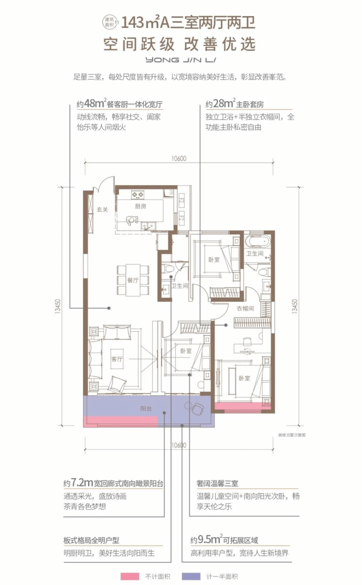
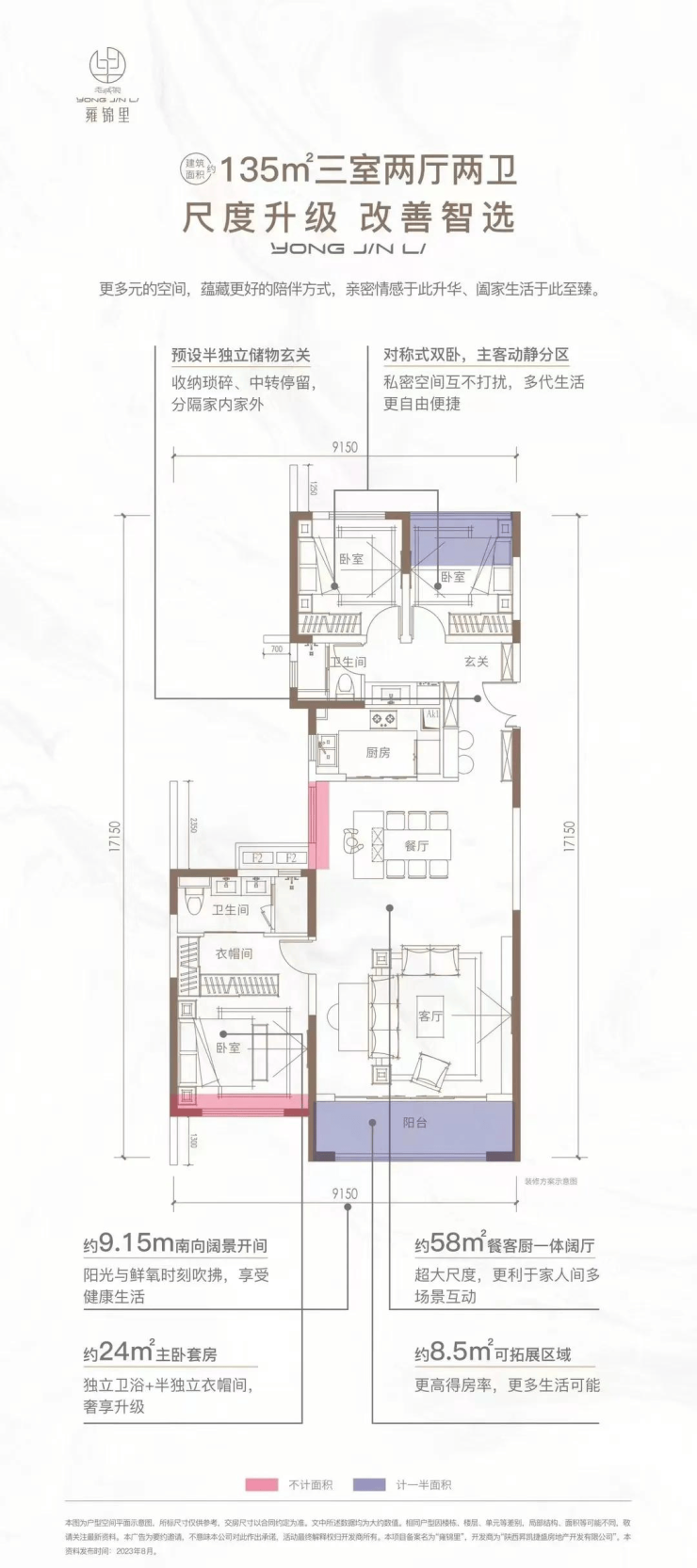
【宽奢人居:优改户型轻氧生活】
以匠心洞见进阶客群的改善需求,以典范户型助力人生进阶。



空间·时代典藏
户型鉴赏:351㎡
新加坡HBA担纲样板间精装设计
餐客一体化,动静皆雅
南向双主卧,美景相伴臻质敬呈
全套房设计,营造独立静谧生活
约7.2米会客端厅,营造人物社交场
约17.3米错层宽幕阳台,打造专属空中花园
效果图
户型鉴赏:376㎡
香港CCD担纲样板间精装设计
入户内玄关,中轴布局,私密尊崇
南向双主卧,悦享低密阔景生活
全套房设计,家庭成员各有其室
270度环幕边厅,汇聚生活&社交功能
约17.6米错层宽幕阳台,部分挑高营造IMAX无界视野

效果图
卓越于心精致于形
阅山境,满足少数人的眼光,呼应人生沉淀
心中有丘壑方行至高处
观世界,尊席有限,生活于此无限
【老城根雍锦里】售楼处TEL:029-88866690【售楼中心】
了解最新优惠折扣价格——请拨打售楼处
声明:本文由入驻焦点开放平台的作者撰写,除焦点官方账号外,观点仅代表作者本人,不代表焦点立场。
