西安2025年商铺,碧桂园云顶丨建面约143-230㎡丨在售楼栋丨学校丨开发商介绍
扫描到手机,新闻随时看
扫一扫,用手机看文章
更加方便分享给朋友
西安「碧桂园云顶」
服务热线:029-88777723(咨询中心)
项目地址:029-88777723(致电发送详情地址)
在售户型图丨项目详情介绍丨剩余房源丨项目周边配套丨详细在线解答

基本信息
楼盘名称:西安碧桂园云顶四期 在售
楼盘特点:一房一价 绿色住宅 人车分流 改善置业 知名物业
参考价格:21000元/m²
物业类型:住宅
开发商:西安碧盈置业有限公司
区域位置:二至三环- 航天基地- 航天基地
楼盘地址:神舟四路与航天大道十字东北角
最新开盘:2023年7月15日
交房时间:2026年6月30日
售楼处地址:神舟四路与航天大道十字东北角

【关于开发商】碧桂园控股有限公司,成立于1992年,是中国销售规模最大的城镇化住宅开发商之一。公司采用集中及标准化的运营模式,提供多元化的产品以契合不同市场需求。
截至2021年12月31日,公司开发项目遍布中国内地31个省、299个地级行政区划、1425个区县,项目总数达到3216个。2022年,碧桂园连续第六年入选《财富》世界500强榜单,位列第138位。
【商业】
云顶项目周围有四大商圈环绕,大雁塔商圈、南湖商圈、雁翔路商圈、CCBD商圈等。有已建成运营的金辉·环球广场、星座广场;华润万家步行15分钟就可以到达,盒马鲜生、徐记海鲜、海底捞、麦当劳、奥斯卡等,步行5分钟就可以享受,满足生活所需。
【交通状况】
轨交:地铁4号线航天大
自驾:走三环或者绕城高速
道路:外部绕城高速、南三环、航天大道、雁塔南路、芙蓉西路等多维立体交通,打通游刃有余的外交关系。

装标品牌
承袭云系精装标准 硬核品质实力非凡
集德国柏丽、杜拉维特、德国高仪、美国西勒奇等名宅钟爱品牌量身优装,呈现艺术与实用的平衡,为大西安城市风华人物,敬献优质生活享受。
户型分析图
143户型
部分户型因位置、楼层、朝向的影响,相同面积的户型存在区别,以现场公示及实际销售双方签订合同为准

190户型
部分户型因位置、楼层、朝向的影响,相同面积的户型存在区别,以现场公示及实际销售双方签订合同为准

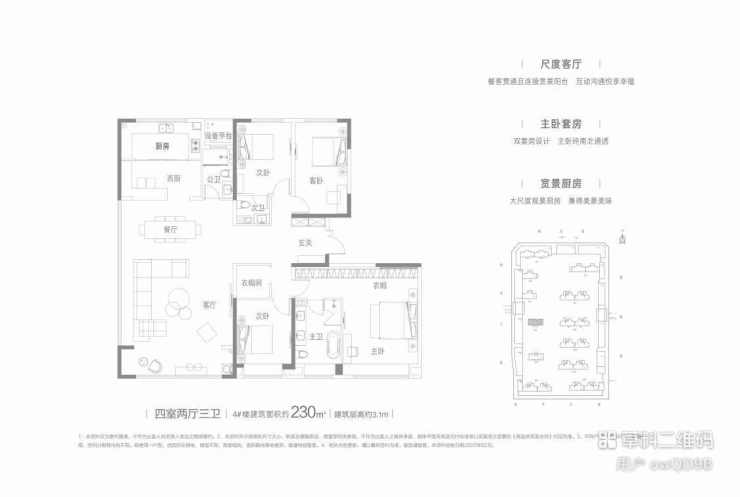
230户型
部分户型因位置、楼层、朝向的影响,相同面积的户型存在区别,以现场公示及实际销售双方签订合同为准
【碧桂园云顶】服务热线TEL:029-88777723【咨询中心】
了解最新优惠折扣价格——请拨打服务热线
声明:本文由入驻焦点开放平台的作者撰写,除焦点官方账号外,观点仅代表作者本人,不代表焦点立场。
