(售楼中心)金辉城君澜河景别院▁在售动态▁售楼处地址▁交付时间▁公园
扫描到手机,新闻随时看
扫一扫,用手机看文章
更加方便分享给朋友
西安「金辉城君澜河景别院」
售楼处:029-88777792(营销中心)
售楼部地址:029-88777792(致电发送详情地址)
在售户型图丨项目详情介绍丨剩余房源丨项目周边配套丨详细在线解答
售楼中心_欢迎来电咨询!预约尊享优惠折扣_匠心钜制恭迎品鉴!
如需了解最新房源信息_在售房源价格_请拨打上方售楼部电话!
【金辉城君澜,让河流为家族作传】
一城丰盛,一世风情;世界在岸,河流入怀,
金辉城君澜,于此天人厚土上,
以河为镜,立家族繁盛之基。
西安北心,泾河之畔
建面约181-434㎡河景联排 不限购
中国 西咸新区 泾河大道
金辉产品系
[铭著系]
七大美学构建质感人居
聚合城市生活资源
定位高净值人群的顶级住宅
[优步系]
U+LIFE有机生长共享生态社区
深谙城市菁英所需
定位都会“中心“生活住区

优质医疗,时刻护佑家人健康
健康是感知美好的必须。项目周边西安交大附属泾河医院(签约落地)等优质医疗资源环绕在侧,时刻护航家人健康,大小麻烦无焦虑。
全生态艺术园林,城现乐活舒居
景观规划以多国艺术元素,打造全生态复合艺术园林,将雅致、自然、现代、时尚的气质融入每一个角落,成就现代都市 生活艺术之旅,全龄乐活社区,竞藏万般美好。


人生大境,河院犒赏生活
河流为幕,家族始兴。上有高堂颐养天年,下有儿女承欢膝下,人生大境成,以一河院犒赏自己,是对自我的奖励,也是对家族成员的最好慰藉。在泾河岸畔,得以众所仰望的河院大境,为当代中国家族立基。
托斯卡纳风格 意式浪漫居境
托斯卡纳建筑,源于意大利中西部托斯卡纳地区,世界四大园林风格之一。其建筑风格很高雅浪漫,符合千百年来人居一致审美,尽享异域风情。
(君澜A三层平面图)
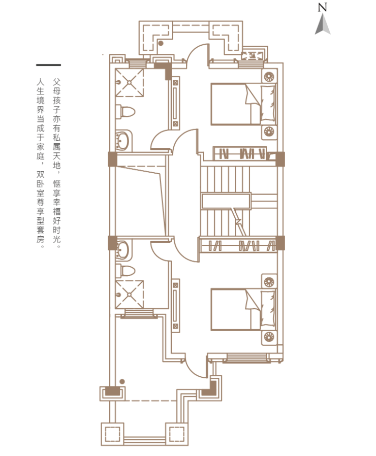
君澜B
建面约182㎡ 三室两厅四卫

(君澜B一层平面图)

(君澜B二层平面图)

实景图
【金辉城君澜河景别院】售楼处TEL:029-88777792【售楼中心】
了解最新优惠折扣价格——请拨打售楼处
声明:本文由入驻焦点开放平台的作者撰写,除焦点官方账号外,观点仅代表作者本人,不代表焦点立场。
