(商铺百科)碧桂园云顶丨建面约143-230㎡丨一房一价丨学校丨建筑面积
扫描到手机,新闻随时看
扫一扫,用手机看文章
更加方便分享给朋友
西安「碧桂园云顶」
服务热线:029-88777723(咨询中心)
项目地址:029-88777723(致电发送详情地址)
在售户型图丨项目详情介绍丨剩余房源丨项目周边配套丨详细在线解答

基本信息
楼盘价格: 参考均价 20000 元/㎡
物业类型: 普通住宅
区域板块: 曲江
产权年限: 70年
绿化率: 35%
容积率: 2.98
占地面积: 198亩
建筑面积: 358607平方米
总户数: 1171户
当期户数: 1171户
车位比: 1:1.4
物业费: 3.3元/m²/月
车位: 地上车位数172 ; 地下车位数2551
物业公司: 碧桂园智慧物业服务集团股份有限公司西安分公司
项目特色: 地铁沿线 4号线 改善好房
开发商: 西安碧盈置业有限公司
楼盘地址: 西安航天基地麟凤路以南,神舟四路以东,航天大道以北
【项目区位】

西安有多个外延中心(高新、经开、浐灞等),但是作为文化名片代表西安对话世界的唯有曲江。因此曲江也成为了闻名的富人聚集区。曲江一期为文化旅游度假区,二期引入金融服务和文化产业,打造了QCIC和CCBD两大核心。迄今都已发展成熟,大曲江格局已然形成,而碧桂园云顶正是选择了曲江,打造城市中的都市豪宅,坐拥全系成熟配套。
【交通】

距离地铁4号线金滹沱站约700米、航天大道站约400米。距离南三环、雁塔收费站约2公里,距离曲江收费站约4公里。项目门口更是有雁塔南路,神州四路两条城市级主干道,高效通达全城。
【教育】
项目周边名校众多,项目一路之隔的航天六小、航天三中已开学;更有师资力量雄厚的名校曲江一小,曲江二小,距离项目不到8公里处,更有接驳国际理念,以国际升学为方向的西安康桥国际学校和西安德闳国际学校。
装标品牌
承袭云系精装标准 硬核品质实力非凡
集德国柏丽、杜拉维特、德国高仪、美国西勒奇等名宅钟爱品牌量身优装,呈现艺术与实用的平衡,为大西安城市风华人物,敬献优质生活享受。
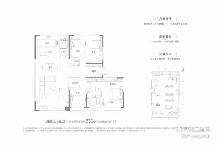
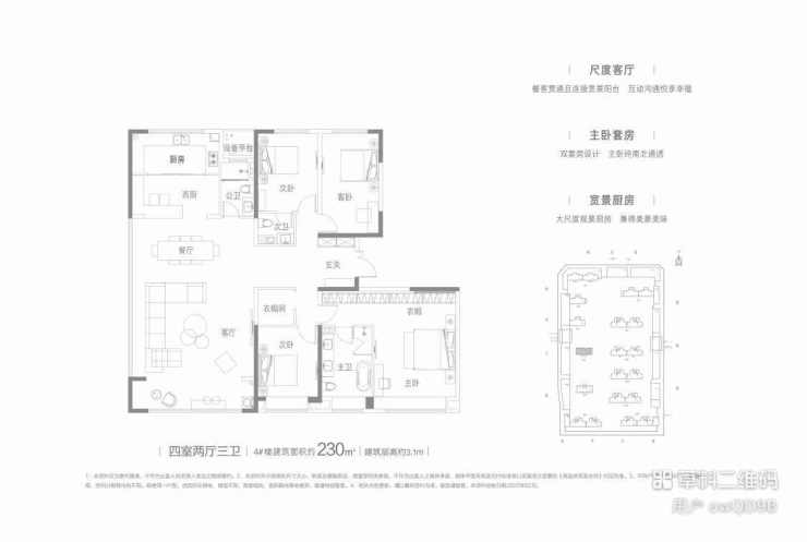
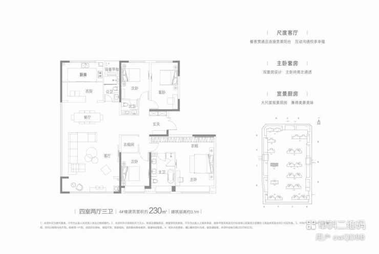
230户型
部分户型因位置、楼层、朝向的影响,相同面积的户型存在区别,以现场公示及实际销售双方签订合同为准



【亮点罗列】
【230㎡户型整体格局】2梯2户/1梯2户大平层豪宅,户型设计四室两厅三卫双套房,270 度无敌美景尽收眼底。
270°无敌视野,美好景观伺于脚下
约75 平米的餐客厅
约35 ㎡奢华主卧;
中西厨设置,考虑北方人的饮食习惯厨房操作台可做面食
双衣帽间设置
【碧桂园云顶】服务热线TEL:029-88777723【咨询中心】
了解最新优惠折扣价格——请拨打服务热线
声明:本文由入驻焦点开放平台的作者撰写,除焦点官方账号外,观点仅代表作者本人,不代表焦点立场。
