华清园文津观澜【特价商铺】丨容积率丨价值分析丨户型展示丨售楼处电话
扫描到手机,新闻随时看
扫一扫,用手机看文章
更加方便分享给朋友
西安「华清园文津观澜」
售楼处:029-88866690(营销中心)
售楼部地址:029-88866690(致电发送详情地址)
在售户型图丨项目详情介绍丨剩余房源丨项目周边配套丨详细在线解答
售楼中心_欢迎来电咨询!预约尊享优惠折扣_匠心钜制恭迎品鉴!
如需了解最新房源信息_在售房源价格_请拨打上方售楼部电话!
基本信息
楼盘价格: 参考均价 11500 元/㎡
物业类型: 洋房 普通住宅
区域板块: 西咸新区
产权年限: 普通住宅:70年
项目特色: 教育资源 小户型 改善好房
开发商: 陕西佳莲房地产开发有限公司
楼盘地址: 兰池二路与秦宫二路东南侧
西咸新区沿承西安国际化大都市的空间结构,在新区形成“一河、两带、四轴、五组团”的空间结构。
一河: 渭河;两带:五陵塬遗址、周秦汉都城遗址;四轴:沿正阳大道拓展城市功能,对接西安钟楼南北线,构建大都市南北主轴带;以沣泾大道为轴带,对接大都市开发区经济发展带;以红光大道为轴带对接大都市东西主轴带,完善大都市发展格局; 以泾渭大道为轴带,连接秦咸阳宫与汉长安城遗址,构建大都市秦汉文化主轴带;五组团: 泾河新城、空港新城、秦汉新城、沣东新城和沣西新城。
在空间布局上,规划了沣东新城、沣西新城、秦汉新城、空港新城、泾河新城,构成“一区五城”的现代田园城市格局。
华清园•文津观澜就位于秦汉新城板块,是连接西安和咸阳的枢纽,距离北客站机场近,交通位置较好,也是连接空港经济区和高铁站经济区的纽带。
周边配套:
教育 /“名校+”示范区 15年优教体系
秦汉新城率先实施“名校+”计划,与众多品牌教育集团合作,打造菁英教育体系,助力孩子精彩未来。
【幼教】:自配品质幼儿园,不出社区,即享“目送式”优教,降低家长接送时间成本。
【小学】:距后宰门小学秦汉分校约300米 ,约30个班,1350个学位,省级示范教育资源,举步可达。
【中学】:一路之隔省级示范高中清华附中秦汉学校,师资雄厚,文化氛围浓厚。
医疗:空军军医大学秦汉校区(建设中)、陕西省西咸新区人民医院,西安儿童医院经开院区,西安红会国际医院
生态 / 公园水岸簇拥 建筑与园林共鸣
秦汉新城渭水穿境,公园聚集,区域绿化率高达约70%,超越曲江、浐灞。
【公园】近距总面积103万平方米渭河湿地公园、约7628亩大秦文明园(包含秦咸阳城考古遗址公园、咸阳博物院、秦文明广场三大板块)。
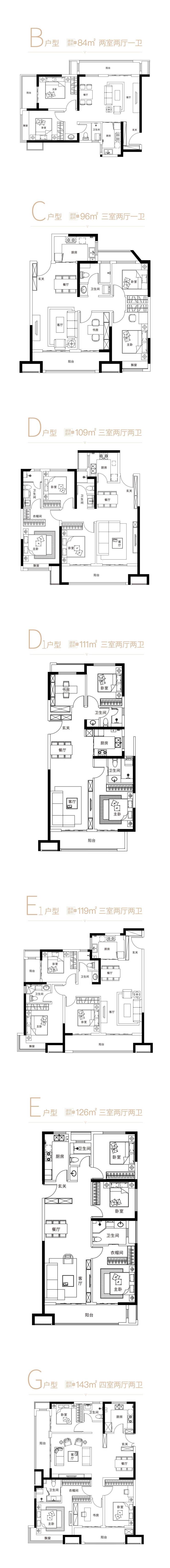
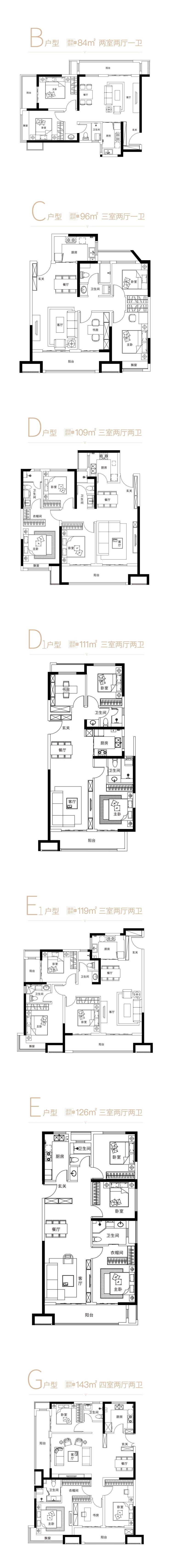
主推户型
【华清园文津观澜】售楼处TEL:029-88866690【售楼中心】
了解最新优惠折扣价格——请拨打售楼处
声明:本文由入驻焦点开放平台的作者撰写,除焦点官方账号外,观点仅代表作者本人,不代表焦点立场。
