写字楼【西安四腾科技园】-项目卖点-大型企业办公-街区商业-公园、学校

搜狐焦点咸阳站 2025-10-11 15:03:00
用手机看
扫描到手机,新闻随时看

扫一扫,用手机看文章
更加方便分享给朋友

西安四腾科技园售楼处提供户型图、周边配套及优惠信息,项目占地48.6亩,总建面8万㎡,含560个车位,预计2024年7月交付。

西安「西安四腾科技园」

售楼处:029-88866618(营销中心)

售楼部地址:029-88866618(致电发送详情地址)

在售户型图丨项目详情介绍丨剩余房源丨项目周边配套丨详细在线解答

总占地:48.6亩

总建面:8万㎡

土地性质:工业用地(2020年12月)

车位:560个(地下,均可安装充电桩),非机动车345个

荷载:首层500kg/㎡,标准层300kg/㎡

电梯:进口芬兰通力

交付标准:毛坯

天然气:入户

项目分为2期开发,目前3#、4#、5#在售,预计2024年7月交付。

生态:200亩城市绿地公园、永安渠海绵城市生态公园、大仁遗址公园

医疗:西安国际医学中心

产业:中交科技城、三星环动力电池、中航电测、陕西光电科学院、中国科学院西安光学 研究院、中国通讯建设、未来之瞳超高层建筑群...

在售产品

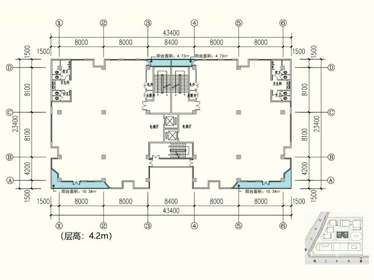
3# 可分割为东西两户销售,每户2342㎡

建筑面积:4684㎡

总高:5层

层高:首层、顶层5.1m,标准层4.2m

单层面积:约500㎡

外立面采用石材+玻璃幕墙,大面积落地窗设计采光充足,办公环境更为舒适;

进口芬兰通力电梯入户,尊贵体验升级,提升企业的形象;

天然气入户,户内通上下水,办公接待两相宜;

项目实景

【高新三期 · 西安四腾科技园】租售中心TEL:029-88866618【租售中心】

了解最新优惠折扣价格——请拨打租售中心

声明:本文由入驻焦点开放平台的作者撰写,除焦点官方账号外,观点仅代表作者本人,不代表焦点立场。