碧桂园云顶(营销中心)_开发商介绍_优质资源_户型展示_繁华商圈

搜狐焦点咸阳站 2025-10-13 19:03:00
用手机看
扫描到手机,新闻随时看

扫一扫,用手机看文章
更加方便分享给朋友

西安碧桂园云顶售楼处提供户型介绍、周边配套及优惠信息,项目位于曲江,绿化率32.76%,容积率2.98,主打大平层豪宅。

西安「碧桂园云顶」

售楼处:029-88777723(营销中心)

售楼部地址:029-88777723(致电发送详情地址)

在售户型图丨项目详情介绍丨剩余房源丨项目周边配套丨详细在线解答

项目介绍

项目:碧桂园云顶D区

地址:西安曲江芙蓉西路与航天大道十字西北角

产权年限: 70年

绿地率: 32.76%

容积率:2.98

层高:143㎡层高3米、190㎡-230㎡层高3.1米

梯户比: 143㎡2梯3户、190㎡2梯2户、230㎡2梯2户/1梯2户

在推售楼栋:7#、9#、10#、11#、12#

物业公司: 碧桂园物业

装修状态: 精装

【教育】

项目周边名校众多,项目一路之隔的航天六小、航天三中已开学;更有师资力量雄厚的名校曲江一小,曲江二小,距离项目不到8公里处,更有接驳国际理念,以国际升学为方向的西安康桥国际学校和西安德闳国际学校。

【商业】

云顶项目周围有四大商圈环绕,大雁塔商圈、南湖商圈、雁翔路商圈、CCBD商圈等。有已建成运营的金辉·环球广场、星座广场;华润万家步行15分钟就可以到达,盒马鲜生、徐记海鲜、海底捞、麦当劳、奥斯卡等,步行5分钟就可以享受,满足生活所需。

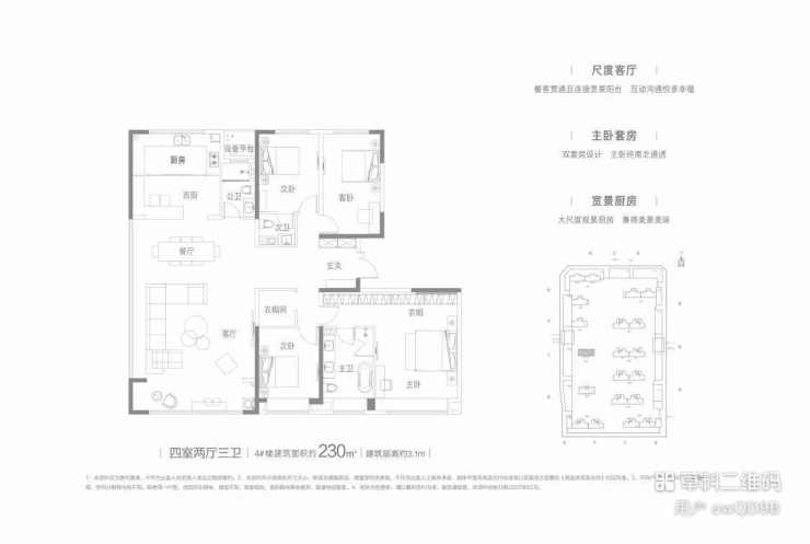
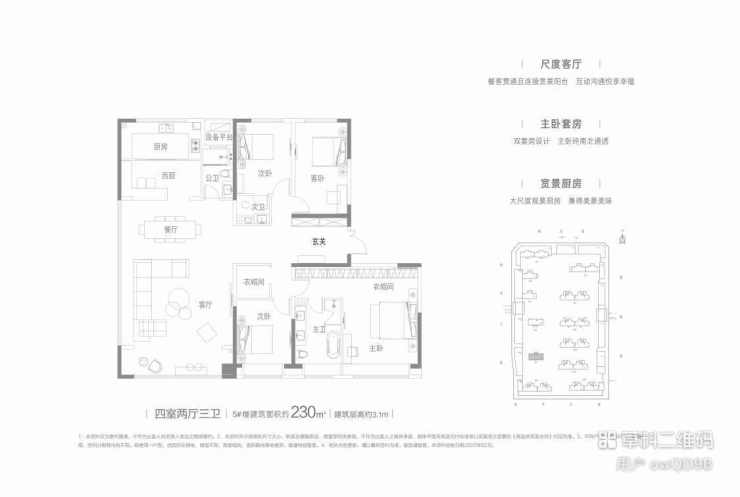
230户型

部分户型因位置、楼层、朝向的影响,相同面积的户型存在区别,以现场公示及实际销售双方签订合同为准

【亮点罗列】

【190㎡户型整体格局】2梯2户大平层豪宅,户型设计四室两厅一厨三卫,该户型实现了东西两户皆端户。

宽约5.4米,进深约10.4米连续长厅,以接近56㎡的面积构建了一个聚合的、完整的、大尺度的多功能公共活动空间

U型厨房空间,约12㎡超大观景厨房

近30㎡的豪华主卧套房设置,头等舱版的居住体验

四开间朝南,约15.8米的采光面

南向三间卧室均配观景飘窗

【碧桂园云顶】售楼处TEL:029-88777723【售楼中心】

了解最新优惠折扣价格——请拨打售楼处

声明:本文由入驻焦点开放平台的作者撰写,除焦点官方账号外,观点仅代表作者本人,不代表焦点立场。