(售楼处)西安四腾科技园-实景展示-实时动态-街区商业-公园、学校
扫描到手机,新闻随时看
扫一扫,用手机看文章
更加方便分享给朋友
西安「西安四腾科技园」
服务热线:029-88866618(咨询中心)
项目地址:029-88866618(致电发送详情地址)
如需了解最新房源信息_在售房源价格_请拨打上方售服务热线电话!
总占地:48.6亩
总建面:8万㎡
土地性质:工业用地(2020年12月)
车位:560个(地下,均可安装充电桩),非机动车345个
荷载:首层500kg/㎡,标准层300kg/㎡
电梯:进口芬兰通力
交付标准:毛坯
天然气:入户
项目分为2期开发,目前3#、4#、5#在售,预计2024年7月交付。
项目配套
西安四腾科技园坐落于西安高新技术开发区的核心地带,北依北斗路,西傍经二十八路,南邻纬二十六路,东至经二十六路。这里不仅是科技创新的摇篮,更是未来企业发展的热土。
交通:高新云轨、地铁15号线、地铁6号线
商业:永安渠商业、阳光新天地;项目自带1.5万㎡商业
4#-2单元 整栋出售
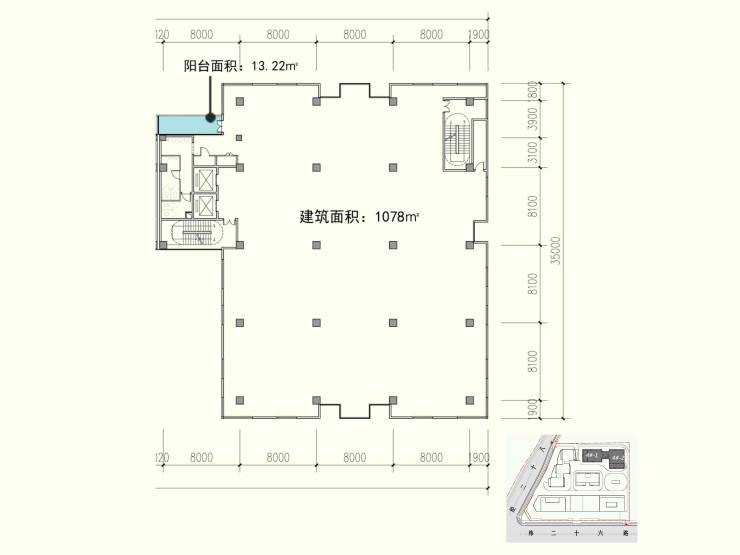
建筑面积:8212㎡
总高:8层
层高:首层4.5m,标准层3.9m
标准层面积:1078㎡
外立面采用石材+玻璃幕墙,大面积落地窗设计采光充足,办公环境更为舒适;
进口芬兰通力电梯入户,尊贵体验升级,提升企业的形象;
天然气入户,户内通上下水,办公接待两相宜;
3#实拍
【高新三期 · 西安四腾科技园】服务热线TEL:029-88866618【咨询中心】
了解最新优惠折扣价格——请拨打服务热线
声明:本文由入驻焦点开放平台的作者撰写,除焦点官方账号外,观点仅代表作者本人,不代表焦点立场。
