华清园文津观澜【特价商铺】丨品牌开发商丨装修效果图丨花园洋房丨知名物业
扫描到手机,新闻随时看
扫一扫,用手机看文章
更加方便分享给朋友
西安「华清园文津观澜」
售楼处:029-88866690(营销中心)
售楼部地址:029-88866690(致电发送详情地址)
如需了解最新房源信息_在售房源价格_请拨打上方售楼部电话!
基本信息
楼盘价格: 参考均价 11500 元/㎡
物业类型: 洋房 普通住宅
区域板块: 西咸新区
产权年限: 普通住宅:70年
项目特色: 教育资源 小户型 改善好房
开发商: 陕西佳莲房地产开发有限公司
楼盘地址: 兰池二路与秦宫二路东南侧
作为我国第七个国家级新区,西咸新区的发展定位是现代化大西安新中心、西部大开发的新引擎、丝绸之路经济带重要支点、国家创新城市发展方式试验区。
西咸新区还兼具国家级新区和西咸自贸区双重属性,现已形成“双区”联动发展新格局,自贸区的经济新引擎不断提高城市品质,为新区增添新的“加速度”。
纵揽区域内优质资源,重塑悦居生活范本
教育
秦汉新城贯彻“名校+”战略,引入100%本科上线率的清华附中秦汉学校、后宰门小学秦汉分校,北京大学雄厚实力的燕园科教创新谷项目,等名校资源,助推秦汉教育体系再升级
交通
秦汉新城作为“北跨”重点区域,是大西安未来的黄金交通枢纽。地铁14号线已通车运营,可实现与2/3/4号线无缝畅连构建半小时生活圈。高速路网、西安咸阳国际机场、西安高铁站,打造多维度立体交通网络,可快速抵达灵宝、三门峡、甘肃等省市。
生态
拥河“北跨”,跨渭发展,渭河将成为西安的城中河,位处“北跨”战略门户的秦汉新城。将成为大西安未来城市核芯有“生态田园都市”之称的秦汉新城,区域绿化率高达约70%,拥享数公里渭河生态景观带,大秦文明园等生态绿地。
医疗
在颐养健康领域,四所三甲医院环绕,空军军医大学秦汉校区、西安红会国际医院,西安儿童医院经开院区(驾车约11分钟)陕西省人民医院西咸院区(驾车约13分钟)。

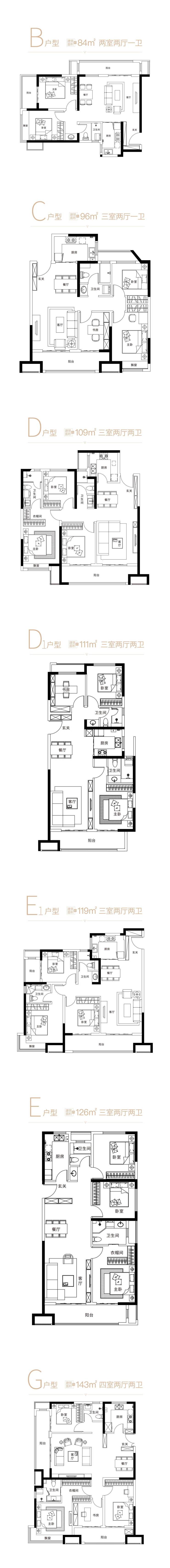
主推户型
【华清园文津观澜】售楼处TEL:029-88866690【售楼中心】
了解最新优惠折扣价格——请拨打售楼处
声明:本文由入驻焦点开放平台的作者撰写,除焦点官方账号外,观点仅代表作者本人,不代表焦点立场。
