2025西安商铺华清园文津观澜丨容积率丨一房一价丨位置交通图丨周边配套
扫描到手机,新闻随时看
扫一扫,用手机看文章
更加方便分享给朋友
西安「华清园文津观澜」
售楼处:029-88866690(营销中心)
售楼部地址:029-88866690(致电发送详情地址)
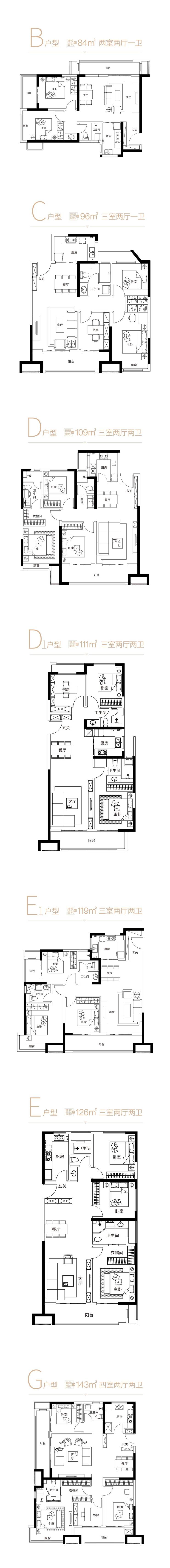
在售户型图丨项目详情介绍丨剩余房源丨项目周边配套丨详细在线解答
售楼中心_欢迎来电咨询!预约尊享优惠折扣_匠心钜制恭迎品鉴!
如需了解最新房源信息_在售房源价格_请拨打上方售楼部电话!
销售信息
销售状态: 在售
楼盘户型:
7种户型,建面:86-143㎡
装修情况: 毛坯
交房时间: 2025年6月30日交付
开盘时间: 2023年12月09日开盘
售楼处地址: 兰池大道与秦宫三路的交叉口西北角
在了解项目之前,我们先来看看华清园•文津观澜项目品牌,是启迪控股旗下子公司华清园,启迪控股也是国家现代服务业示范单位。依托于清华大学设立,是清华科技园开发建设和运营管理单位。
项目整体占地约370亩,总建面约78万㎡,分六期开发。容积率低至2.8,绿化率高达35%,共规划47栋楼,其中住宅43栋,写字楼4栋,总户数3712户,规划车位5550个(住宅4289个,商业1261个)。
项目一期共规划11栋楼,已于2018年5月首推全部售罄。二期位于一期南侧,占地约46亩,是由6栋20层的高层和3栋6+1的洋房组成,目前二期也已经售罄。
商业配套:项目自身有园区配套,后期也会有集中性商业和社区底商。项目西侧约1公里有大秦文明园地下商业广场,以“秦文化”为主题,打造及文化艺术中心、秦风情街、文化艺术体验区全方位的商业模式。
生态环境:项目南侧一路之隔紧邻的就是渭河生态景观带,全长18公里,整个渭河生态景区绿化面积约2.93万亩,水面面积4963亩,囊括河滩景观带,滨河大道景观带和绿色长廊景观带等。
交通方面:项目东临秦宫三路,西至秦宫二路,北临兰池三路,南至兰池大道。项目北侧紧邻地铁14号线,该线路北接机场,横贯秦汉新城,途经北客站最终到达港务区。离项目最近的站点是地铁14号线秦宫站,直线距离大约1.3公里。项目周边还有多条公交线路开通(咸阳32路,咸阳33路,361路,362路,1010路,1145路,1140路,西咸39路),为业主的出行提供了极大的便利。与此同时,项目东侧2公里左右,秦汉收费站口的开通,也极大方便了项目到机场和市区的时间。
教育资源:项目分别位四期和六期设立幼儿园。除项目本身教育资源外,在项目北侧一路之隔是清华附中秦汉学校,是一所公办全日制寄宿制学校。项目西侧两公里是星河湾西交康桥学校,东侧约3公里有兰池学校(具体能上哪所学校要根据交房后有关部门划分为准)。
主推户型
【华清园文津观澜】售楼处TEL:029-88866690【售楼中心】
了解最新优惠折扣价格——请拨打售楼处
声明:本文由入驻焦点开放平台的作者撰写,除焦点官方账号外,观点仅代表作者本人,不代表焦点立场。
