(租售中心)华清园文津观澜商铺丨24小时热线丨价值分析丨位置交通图丨知名物业
扫描到手机,新闻随时看
扫一扫,用手机看文章
更加方便分享给朋友
西安「华清园文津观澜」
售楼处:029-88866690(营销中心)
售楼部地址:029-88866690(致电发送详情地址)
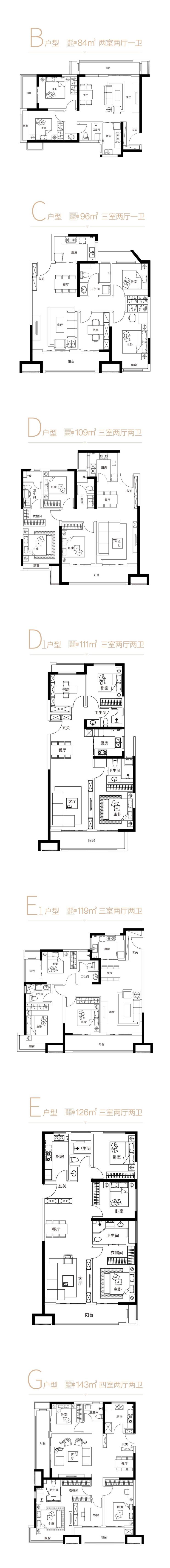
在售户型图丨项目详情介绍丨剩余房源丨项目周边配套丨详细在线解答
售楼中心_欢迎来电咨询!预约尊享优惠折扣_匠心钜制恭迎品鉴!
如需了解最新房源信息_在售房源价格_请拨打上方售楼部电话!
项目概况:
华清园·文津观澜
▪建筑面积:约16.1万㎡
▪绿地率 :约30%
▪楼 高:9-12层
▪物业类型:小高层&洋房
▪产品面积:约84-143㎡
▪梯 户 比 :2T4、2T5
▪物业公司:万科物业
▪开 发 商 :陕西佳莲房地产开发有限公司
项目即将推售三期地块,规划建设净用地面积64亩,容积率2.68,绿化率为30%。三期地块南侧共分别设置2个人行及车行出入口,整个小区采用人车分流地下停车方式,共1265个车位。
三期参考二期产品和规划,进行了再次升级。整个三期共计规划12栋楼,共计918户,其中8栋为12层小高层产品,4栋为9层河景洋房产品,三期整体的楼层均不超过12层,结合项目临河属性,居住舒适度非常高。
项目建筑整体规划以科技感和学院风传承为本案设计主旨,立面设计色彩上墙面以浅色系仿石涂料为主,适当以咖色等较为跳跃的色彩营造整体活跃的风格特点,满足了不同业主的审美情趣,提升建筑品质。
商业配套:项目自身有园区配套,后期也会有集中性商业和社区底商。项目西侧约1公里有大秦文明园地下商业广场,以“秦文化”为主题,打造及文化艺术中心、秦风情街、文化艺术体验区全方位的商业模式。
生态环境:项目南侧一路之隔紧邻的就是渭河生态景观带,全长18公里,整个渭河生态景区绿化面积约2.93万亩,水面面积4963亩,囊括河滩景观带,滨河大道景观带和绿色长廊景观带等。
交通方面:项目东临秦宫三路,西至秦宫二路,北临兰池三路,南至兰池大道。项目北侧紧邻地铁14号线,该线路北接机场,横贯秦汉新城,途经北客站最终到达港务区。离项目最近的站点是地铁14号线秦宫站,直线距离大约1.3公里。项目周边还有多条公交线路开通(咸阳32路,咸阳33路,361路,362路,1010路,1145路,1140路,西咸39路),为业主的出行提供了极大的便利。与此同时,项目东侧2公里左右,秦汉收费站口的开通,也极大方便了项目到机场和市区的时间。
教育资源:项目分别位四期和六期设立幼儿园。除项目本身教育资源外,在项目北侧一路之隔是清华附中秦汉学校,是一所公办全日制寄宿制学校。项目西侧两公里是星河湾西交康桥学校,东侧约3公里有兰池学校(具体能上哪所学校要根据交房后有关部门划分为准)。
主推户型
【华清园文津观澜】售楼处TEL:029-88866690【售楼中心】
了解最新优惠折扣价格——请拨打售楼处
声明:本文由入驻焦点开放平台的作者撰写,除焦点官方账号外,观点仅代表作者本人,不代表焦点立场。
