【西安商铺】吉祥院子|周边配套|配套齐全|开发商直销|最新动态

搜狐焦点咸阳站 2025-10-01 13:57:00
用手机看
扫描到手机,新闻随时看

扫一扫,用手机看文章
更加方便分享给朋友

西安吉祥院子售楼处提供户型、价格、配套及智能社区信息,涵盖高层、洋房及周边生活便利。

西安「吉祥院子」

售楼处:029-88866690(营销中心)

售楼部地址:029-88866690(致电发送详情地址)

在售户型图丨项目详情介绍丨剩余房源丨项目周边配套丨详细在线解答

【基础信息】

【项目名称】:吉祥院子

【项目区域】:雁塔区

【地铁线路】:3号线

【开发商】:西安博森物业有限公司

【总占地】:13.5亩

【总建面】:38382㎡

【开盘情况】(认筹、平销、摇号):平销

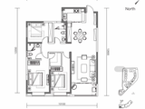
【在售面积】:高层:78㎡ —105㎡ 洋房:135㎡

【在售价位】:高层12600 洋房19600

便捷生活:

享受一刻钟生活,商业-教育-医疗,揽城市繁华生活万象

丰富的社区配套让居住更舒适便捷,楼下即是华润万家超市,举步即达的吉祥诚信商业街及雁塔便民市场,满足日常采买所需。

附近有MOMO PARK购物中心和秋林商场,向东的银泰城、赛格国际购物中心,向西的高新世纪金花、金鹰国际、高新大都荟,都能轻松实现一站 吃喝玩乐购;

匠心建筑:

负责的良心工程+臻选的品质良材

吉祥院子要求做好每个施工细节,所有建筑外窗采用三玻两腔Low-E中空玻璃,节能和降噪指标大幅提升;小区采用家庭自控地辐热供暖、地暖管路整屋标配,温度自主调节、时间灵活可控、使用经济省心、热水即用即来;全小区高品质钢制门和智能指纹门锁标配到户,让业主一步到位,再无更换麻烦。

工程做到保交房、保质量,让业主安心,为居住者提供最安全的保障。

吉祥院子打造智能社区,包含:智能停车场管理、智能安防监控(覆盖全小区及地下停车场,并具夜视功能)、智能门禁系统(智能人脸识别、智能访客管理)、单元门可视对讲系统标配到户,以智能保障安全,以安全维护幸福。让家人于此,安享生活。

户型鉴赏

【吉祥院子】售楼处TEL:029-88866690【售楼中心】

了解最新优惠折扣价格——请拨打售楼处

声明:本文由入驻焦点开放平台的作者撰写,除焦点官方账号外,观点仅代表作者本人,不代表焦点立场。