(商铺百科)领航云熙-交付时间-小区配套-配套醇熟-基础信息
扫描到手机,新闻随时看
扫一扫,用手机看文章
更加方便分享给朋友
西安「领航云熙」
售楼处:029-88866690(营销中心)
售楼部地址:029-88866690(致电发送详情地址)
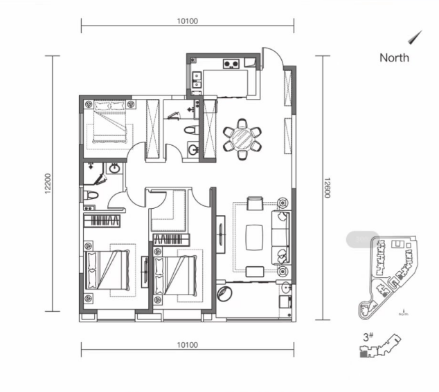
在售户型图丨项目详情介绍丨剩余房源丨项目周边配套丨详细在线解答

小区情况
建筑类型:高层
容积率住宅:5.5
绿化率:29%
交付标准:毛坯
交房时间:4号楼24年底 2.3号楼25.6.30
产权年限:70
总户数 :394
规划户数:756户
车位数:782
物业管理费住宅:2.2元/m²/月
物业公司:西安领航益众物业服务有限公司
项目位于科技路与高新六路十字向北200m;项目周边商场、医疗、教育、公园等各类生活配套齐全,属于高新一期核心生活区;

【交通配套】:3号线丈八北路站直线距离400米;8号线延平门站直线距离800米;5号线汉城南路站1.3km,833路,829路,高新2号线,高新3号线,高新5号线等

医疗:项目周边医疗配套完善,东侧紧邻日化医院。同时(三级甲等资质)西安高新医院仅距离项目约 1.3km、西安医学院第一附属医院距离项目 2.1KM。
生态环境:
距离项目北侧200米有西安唐城墙遗址公园,在项目2公里范围内有牡丹苑和西安新纪元公园。公园可以给你健康的生活方式,漫步公园休养生息,乐享惬意自得的别样时光。

立体景观设计:一环一心一带两区
项目整体的空间结构为“一环一心一带两区”,其中一环指连接项目功能分区板块的环跑健身步道,一心指分布于小区公共核心位置的具有多功能的核心景观区,一带指项目的沿街商业景观带,两大分区分别为与核心景观区相连接的儿童活动区和运动休闲区
热销户型 市面稀缺
户型面积: 103-140㎡
功能划分:三室两厅、四室两厅
户型一:143㎡ 云峯 三室两厅两卫

户型二:141㎡ 云峯 四室两厅两卫
【领航云熙】售楼处TEL:029-88866690【售楼中心】
了解最新优惠折扣价格——请拨打售楼处
声明:本文由入驻焦点开放平台的作者撰写,除焦点官方账号外,观点仅代表作者本人,不代表焦点立场。
