(租售中心)华清园文津观澜商铺丨容积率丨装修效果图丨落户政策丨售楼处电话

搜狐焦点咸阳站 2025-10-10 13:48:00
用手机看
扫描到手机,新闻随时看

扫一扫,用手机看文章
更加方便分享给朋友

西安华清园文津观澜售楼处提供户型、价格、优惠及周边信息,项目位于西咸新区,由万科物业开发。

西安「华清园文津观澜」

售楼处:029-88866690(营销中心)

售楼部地址:029-88866690(致电发送详情地址)

在售户型图丨项目详情介绍丨剩余房源丨项目周边配套丨详细在线解答

售楼中心_欢迎来电咨询!预约尊享优惠折扣_匠心钜制恭迎品鉴!

如需了解最新房源信息_在售房源价格_请拨打上方售楼部电话!

项目概况:

华清园·文津观澜

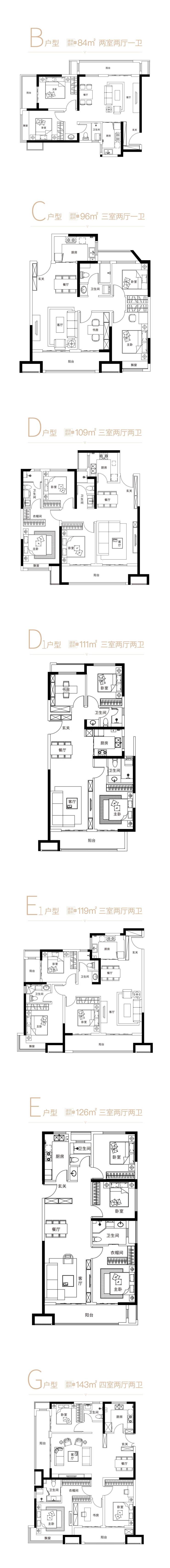
▪建筑面积:约16.1万㎡

▪绿地率 :约30%

▪楼 高:9-12层

▪物业类型:小高层&洋房

▪产品面积:约84-143㎡

▪梯 户 比 :2T4、2T5

▪物业公司:万科物业

▪开 发 商 :陕西佳莲房地产开发有限公司

作为我国第七个国家级新区,西咸新区的发展定位是现代化大西安新中心、西部大开发的新引擎、丝绸之路经济带重要支点、国家创新城市发展方式试验区。

西咸新区还兼具国家级新区和西咸自贸区双重属性,现已形成“双区”联动发展新格局,自贸区的经济新引擎不断提高城市品质,为新区增添新的“加速度”。

项目展示

园林规制“两轴四组团”社区园林景观

构筑集生态、人文于一体的当代都市文教住区

匠心铸造建筑面积约84-143㎡河居阔景小高层

主推户型

【华清园文津观澜】售楼处TEL:029-88866690【售楼中心】

了解最新优惠折扣价格——请拨打售楼处

声明:本文由入驻焦点开放平台的作者撰写,除焦点官方账号外,观点仅代表作者本人,不代表焦点立场。