2025西安商铺华清园文津观澜丨容积率丨装修效果图丨花园洋房丨售楼处电话
扫描到手机,新闻随时看
扫一扫,用手机看文章
更加方便分享给朋友
西安「华清园文津观澜」
售楼处:029-88866690(营销中心)
售楼部地址:029-88866690(致电发送详情地址)
如需了解最新房源信息_在售房源价格_请拨打上方售楼部电话!
【华清园文津观澜】售楼处TEL:029-88866690【售楼中心】
了解最新优惠折扣价格——请拨打售楼处
在了解项目之前,我们先来看看华清园•文津观澜项目品牌,是启迪控股旗下子公司华清园,启迪控股也是国家现代服务业示范单位。依托于清华大学设立,是清华科技园开发建设和运营管理单位。
项目整体占地约370亩,总建面约78万㎡,分六期开发。容积率低至2.8,绿化率高达35%,共规划47栋楼,其中住宅43栋,写字楼4栋,总户数3712户,规划车位5550个(住宅4289个,商业1261个)。
项目一期共规划11栋楼,已于2018年5月首推全部售罄。二期位于一期南侧,占地约46亩,是由6栋20层的高层和3栋6+1的洋房组成,目前二期也已经售罄。
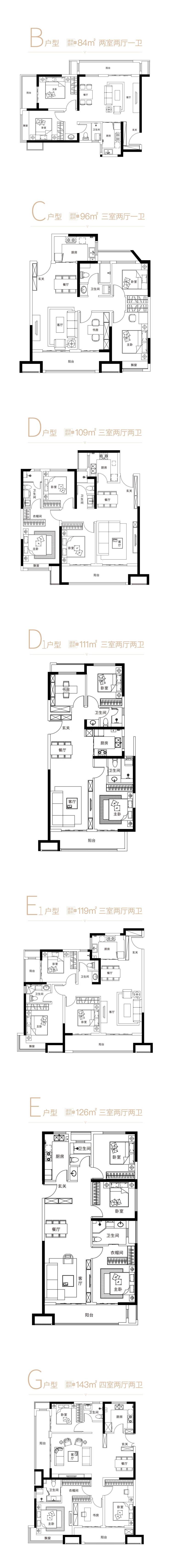
主推户型
纵揽区域内优质资源,重塑悦居生活范本
教育
秦汉新城贯彻“名校+”战略,引入100%本科上线率的清华附中秦汉学校、后宰门小学秦汉分校,北京大学雄厚实力的燕园科教创新谷项目,等名校资源,助推秦汉教育体系再升级
交通
秦汉新城作为“北跨”重点区域,是大西安未来的黄金交通枢纽。地铁14号线已通车运营,可实现与2/3/4号线无缝畅连构建半小时生活圈。高速路网、西安咸阳国际机场、西安高铁站,打造多维度立体交通网络,可快速抵达灵宝、三门峡、甘肃等省市。
生态
拥河“北跨”,跨渭发展,渭河将成为西安的城中河,位处“北跨”战略门户的秦汉新城。将成为大西安未来城市核芯有“生态田园都市”之称的秦汉新城,区域绿化率高达约70%,拥享数公里渭河生态景观带,大秦文明园等生态绿地。
医疗
在颐养健康领域,四所三甲医院环绕,空军军医大学秦汉校区、西安红会国际医院,西安儿童医院经开院区(驾车约11分钟)陕西省人民医院西咸院区(驾车约13分钟)。

基本信息
楼盘价格: 参考均价 11500 元/㎡
物业类型: 洋房 普通住宅
区域板块: 西咸新区
产权年限: 普通住宅:70年
项目特色: 教育资源 小户型 改善好房
开发商: 陕西佳莲房地产开发有限公司
楼盘地址: 兰池二路与秦宫二路东南侧
声明:本文由入驻焦点开放平台的作者撰写,除焦点官方账号外,观点仅代表作者本人,不代表焦点立场。
