高科枫林九里|轩阅里商铺公示!-区位介绍-售楼处推广直售-绿化率-在售户型

搜狐焦点咸阳站 2025-10-15 10:42:00
用手机看
扫描到手机,新闻随时看

扫一扫,用手机看文章
更加方便分享给朋友

高科·枫林九里|轩阅里位于西安高新三环,集教育、医疗、交通于一体,主打舒适户型与自然花园,售楼处电话029-88866690。

西安「高科|轩阅里」

售楼处:029-88866690(营销中心)

售楼部地址:029-88866690(致电发送详情地址)

在售户型图丨项目详情介绍丨剩余房源丨项目周边配套丨详细在线解答

【首开南地块】

【占地面积】:约23.6亩

【建筑面积】:约5.54万㎡

【总户数】:344户

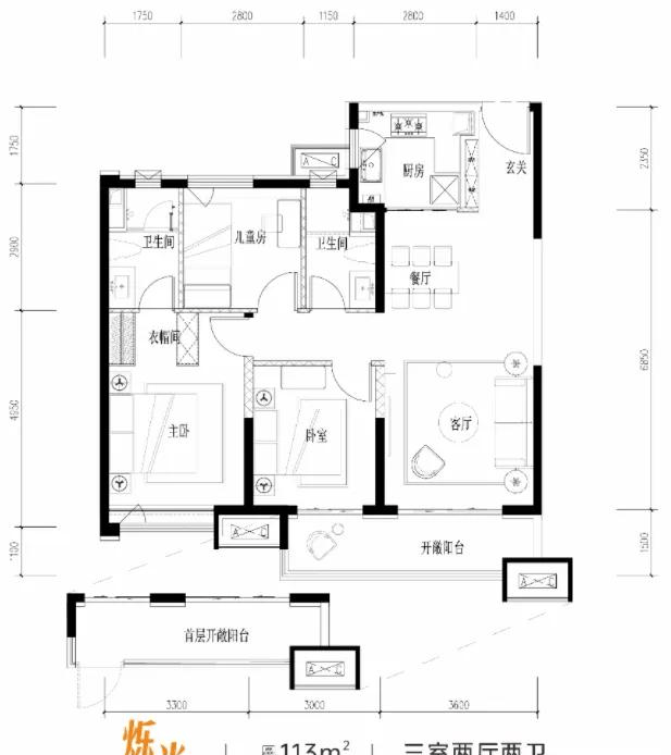
【户型面积】约99-113m²

【项目位置】鱼斗路与西三环相交东南角

区域势能

择址城芯,赋新理想人居

高科·枫林九里丨轩阅里,位处西安高新三环内醇熟版块,立足丝路软件城生活服务中心区、高新区产城人融合的焦点片区,西承丝路软件城万亿级科创产业高地,东享高新一期二期繁华城景,集萃丰盛的教育、交通、商业、生态、医疗资源,标定繁华所向。

优渥医疗配套,护航全家健康

高新医院(三甲综合医院)、安琪儿妇产医院、启迪儿童医院 ( 三级专科医院 )、西安雁塔健桥医院、丈八社区卫生服务中心、鱼化寨卫生服务中心、丈八唐沣社区卫生服务站。

【5大森氧自然花园】邻里艺术花园、儿童老人活动空间、邻里休闲花园、邻里花园(结合消防场地)、森林萌宠乐园,让风景成为邻里社交的背景,让业主享受全时段、全天候的自然诗意生活会客厅。

【美学建筑】超前公建化立面风格,以米白色、灰色涂料相搭配,典雅配色呈现,刷新高新三环风景线。

【舒适格局】

南北通透格局、餐客厨科学布局、流畅动线设计,主卧套房、双卫配置,晨洗晚漱更从容,极大提升舒适度;户户双卫配置,为一家人的晨起夜归更舒适、从容。

【高科·枫林九里|轩阅里】售楼处029-88866690【售楼中心】

了解最新优惠折扣价格——请拨打售楼中心!

声明:本文由入驻焦点开放平台的作者撰写,除焦点官方账号外,观点仅代表作者本人,不代表焦点立场。