(租售中心)华清园文津观澜商铺丨24小时热线丨装修效果图丨户型展示丨最新动态

搜狐焦点咸阳站 2025-10-03 10:51:00
用手机看
扫描到手机,新闻随时看

扫一扫,用手机看文章
更加方便分享给朋友

西安华清园文津观澜项目推出三期,规划12栋楼,绿化率30%,容积率2.68,配套齐全,宜居舒适。

西安「华清园文津观澜」

售楼处:029-88866690(营销中心)

售楼部地址:029-88866690(致电发送详情地址)

在售户型图丨项目详情介绍丨剩余房源丨项目周边配套丨详细在线解答

小区规划

绿化率: 30%

容积率: 2.67

占地面积: 约64亩

建筑面积: 16万方

总户数: 918户

当期户数: 906户

车位比: 1:1.2

物业费: 2.2元/㎡·月

车位: 共1021个车位

物业公司: 西安市万科物业服务有限公司

项目即将推售三期地块,规划建设净用地面积64亩,容积率2.68,绿化率为30%。三期地块南侧共分别设置2个人行及车行出入口,整个小区采用人车分流地下停车方式,共1265个车位。

三期参考二期产品和规划,进行了再次升级。整个三期共计规划12栋楼,共计918户,其中8栋为12层小高层产品,4栋为9层河景洋房产品,三期整体的楼层均不超过12层,结合项目临河属性,居住舒适度非常高。

项目建筑整体规划以科技感和学院风传承为本案设计主旨,立面设计色彩上墙面以浅色系仿石涂料为主,适当以咖色等较为跳跃的色彩营造整体活跃的风格特点,满足了不同业主的审美情趣,提升建筑品质。

周边配套:

教育 /“名校+”示范区 15年优教体系

秦汉新城率先实施“名校+”计划,与众多品牌教育集团合作,打造菁英教育体系,助力孩子精彩未来。

【幼教】:自配品质幼儿园,不出社区,即享“目送式”优教,降低家长接送时间成本。

【小学】:距后宰门小学秦汉分校约300米 ,约30个班,1350个学位,省级示范教育资源,举步可达。

【中学】:一路之隔省级示范高中清华附中秦汉学校,师资雄厚,文化氛围浓厚。

医疗:空军军医大学秦汉校区(建设中)、陕西省西咸新区人民医院,西安儿童医院经开院区,西安红会国际医院

生态 / 公园水岸簇拥 建筑与园林共鸣

秦汉新城渭水穿境,公园聚集,区域绿化率高达约70%,超越曲江、浐灞。

【公园】近距总面积103万平方米渭河湿地公园、约7628亩大秦文明园(包含秦咸阳城考古遗址公园、咸阳博物院、秦文明广场三大板块)。

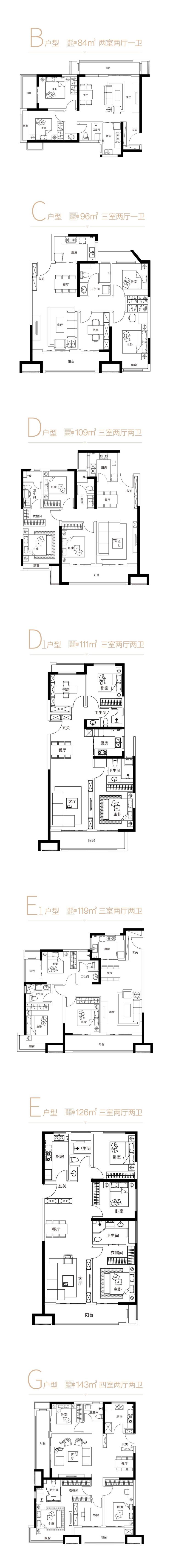
主推户型

【华清园文津观澜】售楼处TEL:029-88866690【售楼中心】

了解最新优惠折扣价格——请拨打售楼处

声明:本文由入驻焦点开放平台的作者撰写,除焦点官方账号外,观点仅代表作者本人,不代表焦点立场。