西安商铺,唐樾六和坊,公园,在售户型,营销地址,交房信息
扫描到手机,新闻随时看
扫一扫,用手机看文章
更加方便分享给朋友
西安「唐樾六和坊」
服务热线:029-68866626(咨询中心)
项目地址:029-68866626(致电发送详情地址)
在售户型图丨项目详情介绍丨剩余房源丨项目周边配套丨详细在线解答
如需了解最新房源信息_在售房源价格_请拨打上方服务热线电话!

【项目简介】
开发商:陕西西瑞房地产开发有限责任公司
项目名称:东方馨苑项目(推广名:唐樾·六和坊|雲禧)
占地面积:35964㎡
建筑面积:98000㎡
容积率:2.76
绿化率:40%
总户数:756户
车位数:635个
车位比:1:0.8
楼栋数:10栋(18层小高层)
面积区间:104-134㎡(两室、三室),2梯2户
交房时间:2023年9月30日
物业公司:西安天腾物业管理有限公司
楼盘介绍
唐樾·六和坊项目东临浐灞生态区、西接汉长安城遗址公园、南瞰曲江新区、北邻经济技术开发区、顺大明宫区域强势崛起之天时、承大明宫遗址公园核心版块之地利,纳六方之贵气,尽和于一地。
唐樾·六和坊为城市中产提供了一处真正“居有所境,因居而荣”的人文高端社区。项目占地约50亩,建筑面积约10万平方米,容积率区域罕有2.76,规划10栋18层纯板,户型全部南北通透,近90℅的得房率,是区域内目前全部规划为纯板小高层,面向二次及以上置业者的高端住区。

唐樾·六和坊为年轻精英精心打造90余平米华美两居,为城市中产家庭量身度制120-150平方米阔适三居,避免小户型与大户型人群混居,社区人群圈层同质化;都会配套、三大商圈,地铁2、3、4号线;项目打造十重安防体系,320万㎡中央公园,让世界成为你的后花园。

【项目配套】
1、交通:道路方面,项目北临北二环,东临东二环两大主干道,西边临近太和路,南邻太元路,东西南北四条干道均为该片区的的重要道路,自驾非常方便;近距地铁3号线(辛家庙站),约15分钟畅达曲江、浐灞、高铁站;约30分钟快速接驳高新;周边享有30余条公交线路,互联西安市各个区域。
2、教育:自配有唐樾乐高幼儿园,周边东前进小学、后宰门小学,太元路小学等,涵盖一站式优质教育资源,铺就菁英成才之路。


3、医疗:三甲西京医院、二甲唐城医院、北环医院、陕健医西安煤机医院等,权威医疗资源环伺,24小时呵护全家健康生活。

4、商业:百寰国际易达·生活中心、万达广场、UPARK悦邻荟、四海唐人街、大明宫购物中心等,成熟商圈云集,包罗生活万象精彩。

5、公园:西邻5400亩5A级景区大明宫遗址公园;南倚东元公园;东近桃花潭公园。三大公园环绕,私享城市低密森氧后花园。

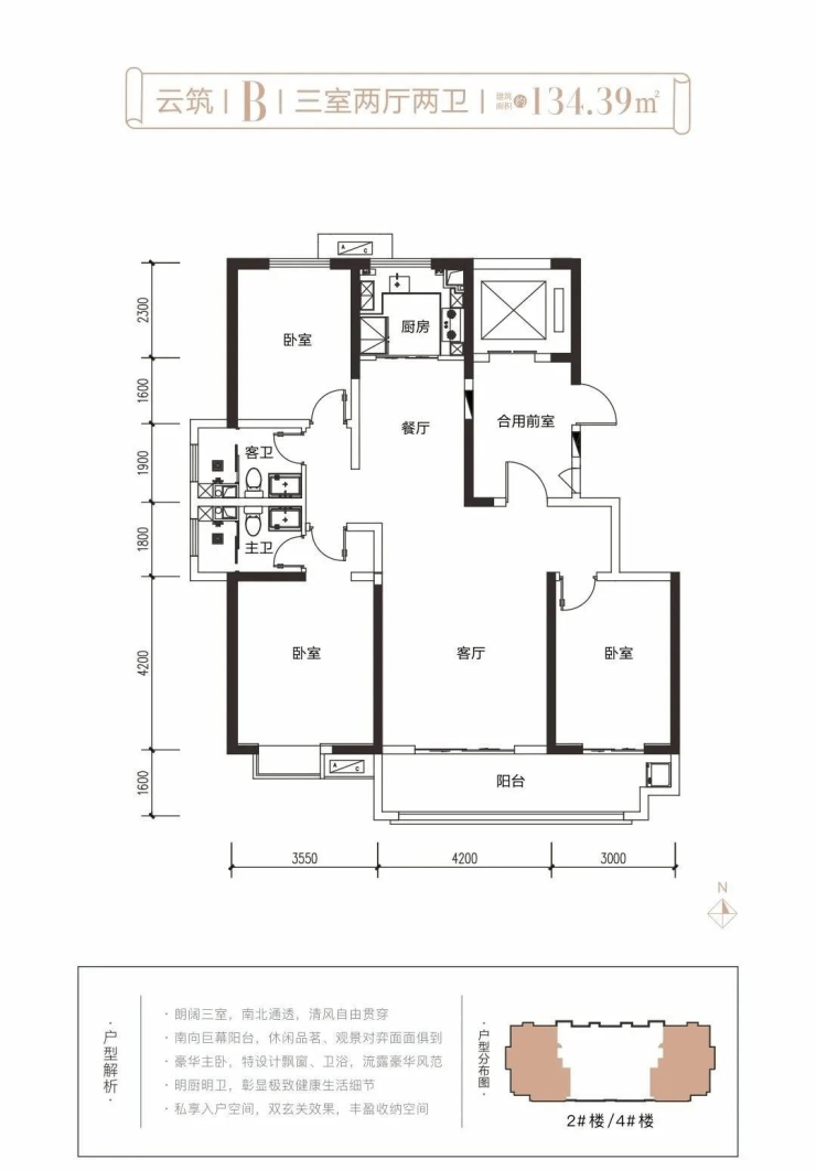
【户型赏析】


【唐樾六和坊】服务热线TEL:029-68866626【咨询中心】
了解最新优惠折扣价格——请拨打服务热线
声明:本文由入驻焦点开放平台的作者撰写,除焦点官方账号外,观点仅代表作者本人,不代表焦点立场。
