(租售中心)华清园文津观澜商铺丨容积率丨产品介绍丨户型展示丨知名物业

搜狐焦点咸阳站 2025-10-12 17:51:00
用手机看
扫描到手机,新闻随时看

扫一扫,用手机看文章
更加方便分享给朋友

西安华清园文津观澜三期售楼处,均价11500元/㎡,绿化率30%,设有1265个车位,南临渭河生态带,交通便利。

西安「华清园文津观澜」

售楼处:029-88866690(营销中心)

售楼部地址:029-88866690(致电发送详情地址)

基本信息

楼盘价格: 参考均价 11500 元/㎡

物业类型: 洋房 普通住宅

区域板块: 西咸新区

产权年限: 普通住宅:70年

项目特色: 教育资源 小户型 改善好房

开发商: 陕西佳莲房地产开发有限公司

楼盘地址: 兰池二路与秦宫二路东南侧

项目即将推售三期地块,规划建设净用地面积64亩,容积率2.68,绿化率为30%。三期地块南侧共分别设置2个人行及车行出入口,整个小区采用人车分流地下停车方式,共1265个车位。

三期参考二期产品和规划,进行了再次升级。整个三期共计规划12栋楼,共计918户,其中8栋为12层小高层产品,4栋为9层河景洋房产品,三期整体的楼层均不超过12层,结合项目临河属性,居住舒适度非常高。

项目建筑整体规划以科技感和学院风传承为本案设计主旨,立面设计色彩上墙面以浅色系仿石涂料为主,适当以咖色等较为跳跃的色彩营造整体活跃的风格特点,满足了不同业主的审美情趣,提升建筑品质。

商业配套:项目自身有园区配套,后期也会有集中性商业和社区底商。项目西侧约1公里有大秦文明园地下商业广场,以“秦文化”为主题,打造及文化艺术中心、秦风情街、文化艺术体验区全方位的商业模式。

生态环境:项目南侧一路之隔紧邻的就是渭河生态景观带,全长18公里,整个渭河生态景区绿化面积约2.93万亩,水面面积4963亩,囊括河滩景观带,滨河大道景观带和绿色长廊景观带等。

交通方面:项目东临秦宫三路,西至秦宫二路,北临兰池三路,南至兰池大道。项目北侧紧邻地铁14号线,该线路北接机场,横贯秦汉新城,途经北客站最终到达港务区。离项目最近的站点是地铁14号线秦宫站,直线距离大约1.3公里。项目周边还有多条公交线路开通(咸阳32路,咸阳33路,361路,362路,1010路,1145路,1140路,西咸39路),为业主的出行提供了极大的便利。与此同时,项目东侧2公里左右,秦汉收费站口的开通,也极大方便了项目到机场和市区的时间。

教育资源:项目分别位四期和六期设立幼儿园。除项目本身教育资源外,在项目北侧一路之隔是清华附中秦汉学校,是一所公办全日制寄宿制学校。项目西侧两公里是星河湾西交康桥学校,东侧约3公里有兰池学校(具体能上哪所学校要根据交房后有关部门划分为准)。

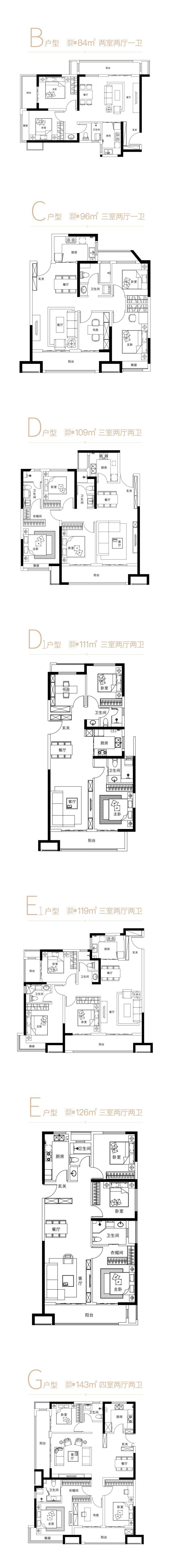
主推户型

【华清园文津观澜】售楼处TEL:029-88866690【售楼中心】

了解最新优惠折扣价格——请拨打售楼处

声明:本文由入驻焦点开放平台的作者撰写,除焦点官方账号外,观点仅代表作者本人,不代表焦点立场。