西安商铺!老城根雍锦里—最新房价-在售户型—开发商直销—楼盘动态
扫描到手机,新闻随时看
扫一扫,用手机看文章
更加方便分享给朋友
西安「老城根雍锦里」
售楼处:029-88866690(营销中心)
售楼部地址:029-88866690(致电发送详情地址)
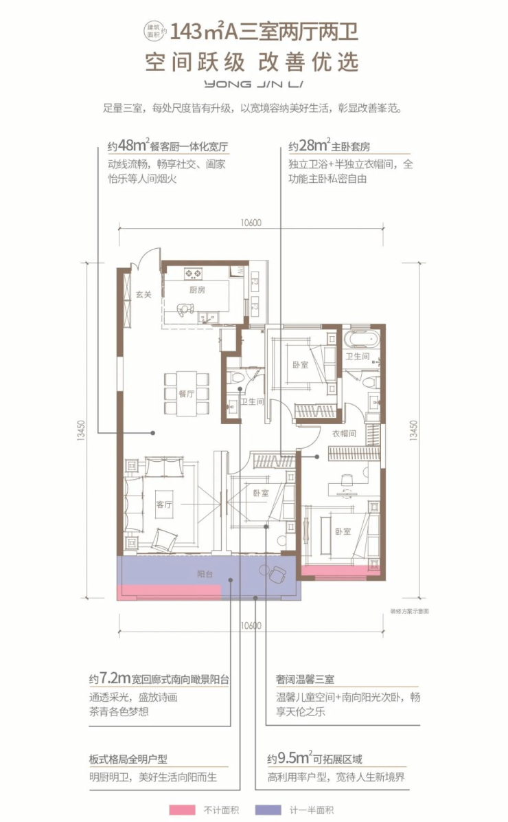
在售户型图丨项目详情介绍丨剩余房源丨项目周边配套丨详细在线解答

基本信息
楼盘价格: 参考均价 16000 元/㎡
物业类型: 普通住宅
区域板块: 城西
产权年限: 70年
销售状态: 在售
楼盘户型建面:135-180㎡
装修情况: 毛坯
交房时间: 预计2026年06月30日交付
开盘时间: 2023年12月下旬开盘
售楼处地址: 星火路与大兴东路十字西北角
项目特色: 地铁沿线 改善好房
开发商: 陕西昇凯捷盛房地产开发有限公司
楼盘地址: 星火路与大兴东路十字西北角
【城市焕新:老城根TOD大城规划】
老城根集团约187亩TOD大城耕新主城。以标杆商业+改善人居,重塑城市格局,造极理想生活图景。
惟此城芯 稀缺限购价值恒久
西安版图拓疆,高新、西咸等新区可无限延展,惟有城墙边中芯土地不可复制,永恒向往。

主城耕新第一篇章:繁华启序
老城根G park
千年文脉与世界风潮碰撞融合,造就时尚生活集合体。更新老城面貌,焕新生活方式,引领时代潮流,让西安重新认识城西,让世界重新瞩目西安。
主城耕新第二篇章:世家典藏

老城根·雍锦世家
城根下世府家,老城根主城耕新改善力作,为当代世家阶层打造繁华芯的隐贵生活主场,城市人居地标即将美好呈现。

主城耕新第三篇章:改善登峰
老城根·雍锦里
老城根匠心迭代之作,社区规制升维,产品价值登峰。以建面约135-180㎡改善终藏,为时代重构兼容繁华与静谧的森境生活,和鸣时代的主城向往。

·以园造景 森氧五园艺境绿洲
森境叠水流瀑园
水韵相映,自然声声入耳,区隔内外空间。让自然、艺术、生命力与社区完美相融,给予生活无限美好。

森栖谧语会客园
近享绿意,密语自然,感受森境园林开放、融合的生命力,让居者的社交与品味在潜移默化间生长。

森间童趣游乐园
森间亲子活动空间,让童趣回归野趣,在探索自然中成长,时刻感受森系社区蓬勃向上的力量。

森氧生命律动园
将健身场所置于开放的自然环境中,晨起舒动鲜氧,傍晚悠游养心,在生命与自然的融合中,悦享健康人生。

森系自然植物园
选取如丛生乌桕、丛生五角枫、丛生朴树、美国红枫、北美海棠、国槐、桂花、榉树、银杏等适宜西安本土生长的25种大小乔木珍植,通过设计搭配,营造时时有绿、处处皆景,自然与人文共生长的城芯私享植物园。

【宽奢人居:优改户型轻氧生活】
以匠心洞见进阶客群的改善需求,以典范户型助力人生进阶。



空间·时代典藏
户型鉴赏:351㎡
新加坡HBA担纲样板间精装设计
餐客一体化,动静皆雅
南向双主卧,美景相伴臻质敬呈
全套房设计,营造独立静谧生活
约7.2米会客端厅,营造人物社交场
约17.3米错层宽幕阳台,打造专属空中花园
效果图
户型鉴赏:376㎡
香港CCD担纲样板间精装设计
入户内玄关,中轴布局,私密尊崇
南向双主卧,悦享低密阔景生活
全套房设计,家庭成员各有其室
270度环幕边厅,汇聚生活&社交功能
约17.6米错层宽幕阳台,部分挑高营造IMAX无界视野

效果图
卓越于心精致于形
阅山境,满足少数人的眼光,呼应人生沉淀
心中有丘壑方行至高处
观世界,尊席有限,生活于此无限
【老城根雍锦里】售楼处TEL:029-88866690【售楼中心】
了解最新优惠折扣价格——请拨打售楼处
声明:本文由入驻焦点开放平台的作者撰写,除焦点官方账号外,观点仅代表作者本人,不代表焦点立场。
