#商铺推荐老城根雍锦里—最新房价-在售户型 —装修效果图—楼盘动态
扫描到手机,新闻随时看
扫一扫,用手机看文章
更加方便分享给朋友
西安「老城根雍锦里」
售楼处:029-88866690(营销中心)
售楼部地址:029-88866690(致电发送详情地址)
在售户型图丨项目详情介绍丨剩余房源丨项目周边配套丨详细在线解答
 
基本信息
楼盘价格: 参考均价 16000 元/㎡
物业类型: 普通住宅
区域板块: 城西
产权年限: 70年
销售状态: 在售
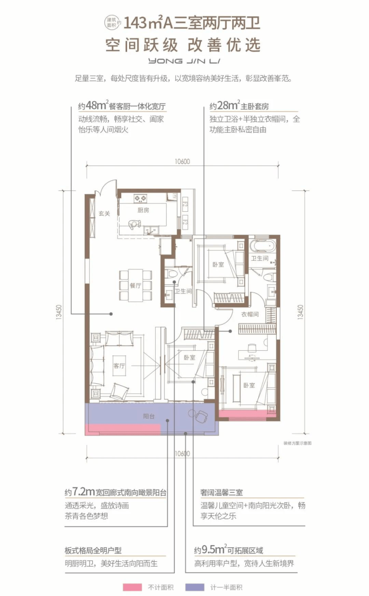
楼盘户型建面:135-180㎡
装修情况: 毛坯
交房时间: 预计2026年06月30日交付
开盘时间: 2023年12月下旬开盘
售楼处地址: 星火路与大兴东路十字西北角
项目特色: 地铁沿线 改善好房
开发商: 陕西昇凯捷盛房地产开发有限公司
楼盘地址: 星火路与大兴东路十字西北角
·潮玩圣地:别人的追逐,不过是你的生活
西北旗舰店/首店聚集地:
迪奥、AJ、POPMART、lululemon、Coach、MK、%、MLB等
各大品牌聚合场:盒马/方所书店/开顿影城/海底捞等
品质餐饮先享区:眉州东坡、老铺烤鸭、仟滕日料、靓靓蒸虾、薇酌饮、倾城瘾食等
 
楼市新政,二环内持续限购,土地价值一城认可,有限核芯资产注定引人抢藏。
西安2023年二批次土地出让计划,碑林、莲湖、新城主城三区供地相加,仅占总出让面积约3.54%(数据来源:西安楼市情报公众号),主城新地已近告罄,未来难有新盘供应,进驻主城机会越来越少。
 
会呼吸的质感建筑
东方元素融贯现代匠艺 筑就隐奢静谧的森质臻宅
【森感建筑:栖心雅宅美学封面】
 
·公建化外立面典范形制
中式横向肌理、超高窗墙比、“黄韵银律”等功能形制与建筑美学有机统一,阳光清风无界,采光视野扩容,以居所品质彰显身份认知。
·纯板式高阶建筑格局
270°瞰景视野、约8%-13%高赠送宽奢户型、3.05M层高、约10M奢阔南向开间(除135㎡户型)、南北向通透对流,“会呼吸”的好房子。
 
【森质细节:雕琢细节精致生活】
·酒店式透景归家大堂
归家大堂以酒店式接待为蓝本,空间、材质及灯光多维度组合,内部枯山水与外部森氧园景对韵映照,艺术与生活完美融合,令到访者切身体验到归家的仪式感、自由感。
 
·地下车库精装双大堂
匠筑地库归家空间、休憩区,营造双入户大堂,连接住宅地上地下功能空间,凸显豪华与尊贵,高定生活从归家开始。
 
·精装电梯前室/走廊等公区
电梯前室/走廊等公区采用墙砖/地砖精装,营造品质归家氛围。一层透景玻璃,将景观引入室内,做到处处有景。
 
·以园造景 森氧五园艺境绿洲
森境叠水流瀑园
水韵相映,自然声声入耳,区隔内外空间。让自然、艺术、生命力与社区完美相融,给予生活无限美好。
 
森栖谧语会客园
近享绿意,密语自然,感受森境园林开放、融合的生命力,让居者的社交与品味在潜移默化间生长。
 
森间童趣游乐园
森间亲子活动空间,让童趣回归野趣,在探索自然中成长,时刻感受森系社区蓬勃向上的力量。
 
森氧生命律动园
将健身场所置于开放的自然环境中,晨起舒动鲜氧,傍晚悠游养心,在生命与自然的融合中,悦享健康人生。
 
森系自然植物园
选取如丛生乌桕、丛生五角枫、丛生朴树、美国红枫、北美海棠、国槐、桂花、榉树、银杏等适宜西安本土生长的25种大小乔木珍植,通过设计搭配,营造时时有绿、处处皆景,自然与人文共生长的城芯私享植物园。
 
【宽奢人居:优改户型轻氧生活】
以匠心洞见进阶客群的改善需求,以典范户型助力人生进阶。
 
 
 
空间·时代典藏
户型鉴赏:351㎡
 
新加坡HBA担纲样板间精装设计
餐客一体化,动静皆雅
南向双主卧,美景相伴臻质敬呈
全套房设计,营造独立静谧生活
约7.2米会客端厅,营造人物社交场
约17.3米错层宽幕阳台,打造专属空中花园
 
效果图
户型鉴赏:376㎡
 
香港CCD担纲样板间精装设计
入户内玄关,中轴布局,私密尊崇
南向双主卧,悦享低密阔景生活
全套房设计,家庭成员各有其室
270度环幕边厅,汇聚生活&社交功能
约17.6米错层宽幕阳台,部分挑高营造IMAX无界视野
 
效果图
卓越于心精致于形
阅山境,满足少数人的眼光,呼应人生沉淀
心中有丘壑方行至高处
观世界,尊席有限,生活于此无限
 
【老城根雍锦里】售楼处TEL:029-88866690【售楼中心】
了解最新优惠折扣价格——请拨打售楼处
声明:本文由入驻焦点开放平台的作者撰写,除焦点官方账号外,观点仅代表作者本人,不代表焦点立场。
 
  
  
 
 
  
  
  
 